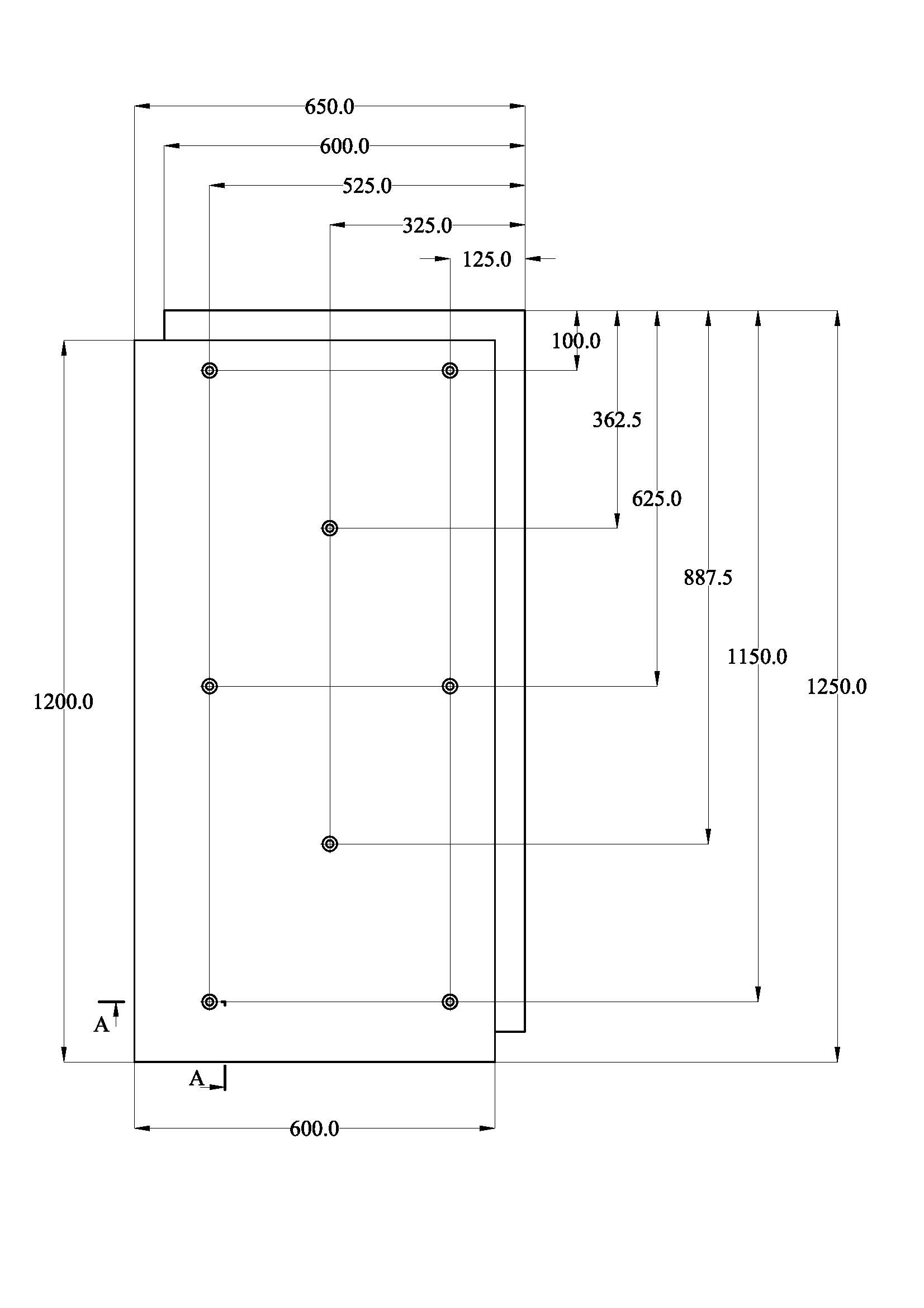
1. Если смотреть на лицевую сторону ЗИПС для случая монтажа на стену гребень будет расположен по левой и нижней кромке панели:

- ЗИПС.jpg (108.99 КБ) Просмотров: 12551
Панель, зеркально отраженная данному чертежу не производится.
2. Разрез виброузла приведен на странице 3 буклета:
http://acoustic.ru/data/pdf/ZIPS_2012_preview.pdfУпругий элемент в виброизолирующем узле выполнен с использованием виброакустического герметика. Если линия роспила попадает на виброузел, то данный виброузел не используется. В противном случае крепление осуществляется согласно инструкции по монтажу.
3. Отверстие пробивается в узле и равно диаметру дюбеля или анкерного элемента.
P.S. Посмотрите видео по монтажу ЗИПС, думаю, это снимет многие вопросы:
http://www.youtube.com/watch?v=OeEqttjA ... e=youtu.be