Что такое "плавающий пол", как правильно возвести звукоизоляционную перегородку, как снизить уровень шума в боулинге, фитнесс-зале, офисе, как звукоизолировать вентилятор, насос, домашний кинотеатр и т.д.
Модераторы: Виталий Роденков, Александр Фадеев, Антон Перетокин, Николай Канев, Андрей Нечаев, Александр Боганик, root, Наталья Ширгина
MAD3X » Пт мар 03, 2017 3:08 pm
Приветствую всех. Подскажите пожалуйста. Что предпочтительней использовать для звукоизоляции межкомнатных перегородок, из пазогребневых гипсовых плит толщиной не более 100 мм "Саундлайн-ПГП Супер" или "ЗИПС-Вектор"?
-
MAD3X
-
- Сообщения: 2
- Зарегистрирован: Пт мар 03, 2017 2:41 pm
- Город: Москва
Вохмянин Михаил » Пт мар 03, 2017 5:19 pm
MAD3X писал(а):Приветствую всех. Подскажите пожалуйста. Что предпочтительней использовать для звукоизоляции межкомнатных перегородок, из пазогребневых гипсовых плит толщиной не более 100 мм "Саундлайн-ПГП Супер" или "ЗИПС-Вектор"?
Добрый день! Целесообразнее использовать саундлайн.
-
Вохмянин Михаил
-
- Сообщения: 370
- Зарегистрирован: Вт янв 25, 2011 12:16 pm
- Город: Санкт-Петербург
-
MAD3X » Вт мар 07, 2017 9:09 am
Спасибо.
-
MAD3X
-
- Сообщения: 2
- Зарегистрирован: Пт мар 03, 2017 2:41 pm
- Город: Москва
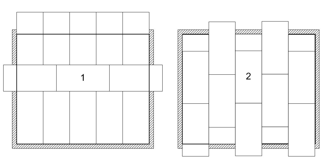
Toli » Пн апр 17, 2017 11:31 pm
Здравствуйте,
подскажите есть ли какая разница при укладке плит Саундлайн-пгп супер? (на рисунке два варианта)
Какой вариант предпочтительнее или это абсолютно без разницы, лишь бы выдерживалось правило "Разбежка стыков должна составлять не менее 250 мм"
- Вложения
-

- Саундлайн-ПГП.jpg (55.54 КБ) Просмотров: 7670
-
Toli
-
- Сообщения: 7
- Зарегистрирован: Пн апр 03, 2017 11:09 am
- Город: Киров
Илья Мельник » Ср апр 19, 2017 5:35 pm
Добрый день!
Вариант 2 предпочтительнее. Также он более экономичен с точки зрения расходу материалов.
-
Илья Мельник
-
- Сообщения: 127
- Зарегистрирован: Пн янв 27, 2014 11:41 am
- Город: Киев
-
Toli » Чт апр 20, 2017 3:11 pm
Илья Мельник писал(а):Добрый день!
Вариант 2 предпочтительнее. Также он более экономичен с точки зрения расходу материалов.
Спасибо, в первом варианте остается больше крупных отрезков для использования на других стенах, но если с стороны звукоизоляции второй предпочтительнее, то будем считать по нему.
-
Toli
-
- Сообщения: 7
- Зарегистрирован: Пн апр 03, 2017 11:09 am
- Город: Киров
Toli » Чт апр 20, 2017 8:36 pm
Еще вопросик
В альбомах нет Саундлайн-ПГП, хочу уточниться:
Как правильнее пристыковать обычный потолок на каркасе (не виброизолированный) к Саундлайн-ПГП.
1) Как полки и остальные предметы (из рекомендаций по монтажу) прямо к панели через шуруп
2) Или наподобие звукоизолирущего потолка, сначала потолок, потом стены.
PS
и сразу спрошу если делать потолок на виброподвесах или ЗИПС, то как стыковать Саундлайн-ПГП.
- Вложения
-

- Саундлайн-ПГП и потолок.jpg (203.51 КБ) Просмотров: 7595
-
Toli
-
- Сообщения: 7
- Зарегистрирован: Пн апр 03, 2017 11:09 am
- Город: Киров
Илья Мельник » Пт апр 21, 2017 2:16 pm
Если аотолок у вас на прямых подвесах, нет разницы как стыковать. В принципе, лучше облицовку с помощью Саундлайн-ПГП выполнять на всю перегородку.
Если выполняется примыкание звукоизоляционного потолка, то лучше им примыкать к уже смонтированным листам Саундлайн-ПГП как к обычной жесткой стене.
-
Илья Мельник
-
- Сообщения: 127
- Зарегистрирован: Пн янв 27, 2014 11:41 am
- Город: Киев
-
Мясников Максим » Сб апр 22, 2017 12:54 pm
Toli писал(а):Еще вопросик
В альбомах нет Саундлайн-ПГП, хочу уточниться:
Как правильнее пристыковать обычный потолок на каркасе (не виброизолированный) к Саундлайн-ПГП.
1) Как полки и остальные предметы (из рекомендаций по монтажу) прямо к панели через шуруп
2) Или наподобие звукоизолирущего потолка, сначала потолок, потом стены.
PS
и сразу спрошу если делать потолок на виброподвесах или ЗИПС, то как стыковать Саундлайн-ПГП.
1) 1-й вариант предпочтительнее. Саундлайн-ПГП дополнительно закроет верхнюю часть с плохой звукоизоляцией.
2) Стену облицованную Саундлайн-ПГП можно считать как единую конструкцию стены.
-
Мясников Максим
-
- Сообщения: 56
- Зарегистрирован: Вт авг 25, 2015 9:02 am
- Город: Уфа
Toli » Пн апр 24, 2017 10:34 am
Спасибо!
-
Toli
-
- Сообщения: 7
- Зарегистрирован: Пн апр 03, 2017 11:09 am
- Город: Киров
Вернуться в Звукоизоляция
Кто сейчас на конференции
Сейчас этот форум просматривают: нет зарегистрированных пользователей и гости: 15