AlexMegavolt » Чт фев 25, 2016 4:55 am
Здравствуйте! Прошу вашего совета! В кирпичной новостройке, схема 1, планирую снести межкомнатные перегородки из керамзитобетона 90 мм и свою часть межквартирной двойной перегородки из керамзитобетона 90 мм. Заштукатурить соседскую стену и сделать стяжку на пол с применением Шумостоп-С2, К2 (2 слоя), а потом возвести звукоизоляционные перегородки по альбому acoustic.ru по схеме 3. Возможно ли сделать единую стяжку 40 м2 по квартире такой формы - схема 2 или обязательно делать деформационные швы по будущим перегородкам. Просто хотелось бы иметь единый уровень пола в квартире и как сделать эти швы при заливке я не представляю. Как лучше выполнить узел примыкания двойной перегородки (желтой) к одинарной (зеленой), в альбомах я такого не нашел. Сам додумался только до такого – схема 4. Дом еще не построен, шумоизоляцию планирую т. к. не надеюсь на то что повезет с соседями. К тому же у меня двое своих сорванцов, и хотелось бы защитить соседей. Потолок пока делать не планирую, надеюсь уговорить соседей с верху на стяжку по Шумостоп-С2, К2 (2 слоя), как минимум подарю «Акуфлекс». Между кухней и залом решил делать 2-х каркасную перегородку, а 1-но каркасную в коридор т. к. все равно двери снизят звукоизоляцию. Может я в чем ошибаюсь – подскажите.
- Вложения
-

- 4.jpg (73.09 КБ) Просмотров: 3487
-

- Планируемые перегородки.
- 3.jpg (110.59 КБ) Просмотров: 3487
-

- Примерная площадь стяжки пола.
- 2.jpg (56.75 КБ) Просмотров: 3487
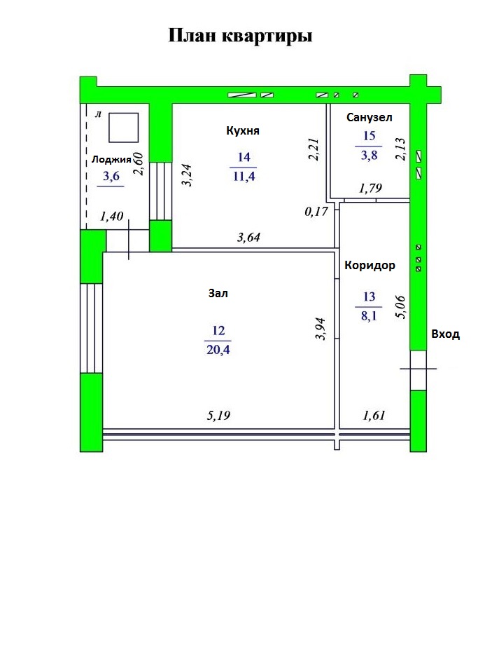
-

- В таком виде сдает застройщик.
- 1.jpg (69.79 КБ) Просмотров: 3487