Что такое "плавающий пол", как правильно возвести звукоизоляционную перегородку, как снизить уровень шума в боулинге, фитнесс-зале, офисе, как звукоизолировать вентилятор, насос, домашний кинотеатр и т.д.
Модераторы: Виталий Роденков, Александр Фадеев, Антон Перетокин, Николай Канев, Андрей Нечаев, Александр Боганик, root, Наталья Ширгина
ivan.charisma » Пн май 02, 2011 1:01 pm
Добрый день,
Меня интересует звукоизоляция потолка во всей квартире от звукового шума соседей сверху (голоса, шум телевизора и т.д.). Хотел бы выяснить пару моментов:
1. Возможно ли двухуровневое устройство потолка со звукоизоляцией.
2. Возможно ли заказ данных работ у Вас [acoustic.ru] под ключ?
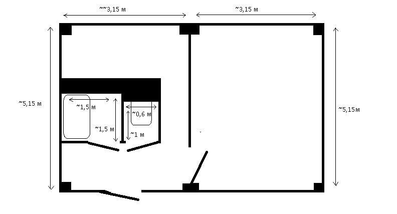
3. Примерная стоимость материалов + работ (метраж на картинке в приложении).
С уважением, Иван.
- Вложения
-

- flat.jpg (31.53 КБ) Просмотров: 2174
-
ivan.charisma
-
- Сообщения: 1
- Зарегистрирован: Пн май 02, 2011 12:54 pm
Александр Фадеев » Вт май 03, 2011 10:50 am
Здравствуйте, Иван.
1. Возможно. Для конструкции звукоизоляционной облицовки с использованием виброподвесов.
2. С 1 мая 2011 года "Акустик групп" не оказывает услуги по монтажу конструкций. Возможно техническое сопровождение в формате шеф-монтаж.
-
Александр Фадеев
-
- Сообщения: 1473
- Зарегистрирован: Ср июн 25, 2008 1:26 pm
- Город: Москва
-
Вернуться в Звукоизоляция
Кто сейчас на конференции
Сейчас этот форум просматривают: нет зарегистрированных пользователей и гости: 41