Что такое реверберация, планировка домашних кинотеатров и студий звукозаписи, звукорассеивание и звукопоглощение, размещение акустических материалов в музыкальной комнате, дискотеке, конференц-зале, боулинге и т.д.
Модераторы: Виталий Роденков, Александр Фадеев, Антон Перетокин, Николай Канев, Андрей Нечаев, Александр Боганик, root, Наталья Ширгина
k795xo » Вт апр 20, 2010 6:00 pm
Здравствуйте!
Мы строим свою репетиционную базу. На данный момент столкнулись с проблемой избыточного гула.
Помещение находится на первом этаже старого (180 лет) нежилого здания. Стены толстые, предположительно из двух слоев кирпича. Проблемы звукоизоляции нет, нас почти не слышно.
Но внутри помещения есть избыточная реверберация, гул, плюс в некоторых местах с аккустикой вообще проблемы, видимо из-за задержек и отражений начинаешь "терять ритм".
Стены покрыты ковролином. Стена в маленькую комнату из кирпича, снаружи конструкции с минеральной ватой, поверх гипрок (точно не уверен), поверх тоже ковролин. На полу ковролин. Потолок из кирпича, поверх побелка.
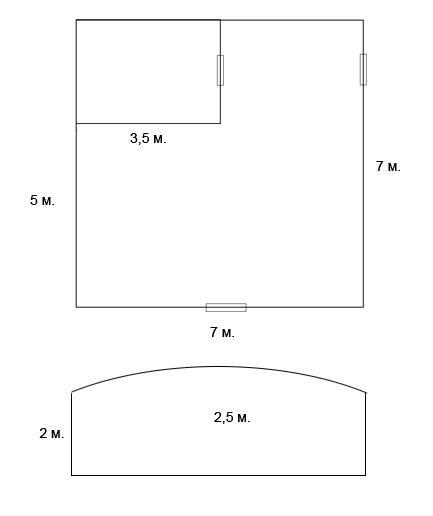
Все картинки во вложениях. Как можно бюджетно справится с нашей проблемой?
Проблему состовляет потолок: его форма - свод. Будет ли иметь смысл его обделать чем-то вроде войлока? К тому же он не высок. Плюс это или минус?
- Вложения
-

- выглядит
- x_8398e00a.jpg (48.78 КБ) Просмотров: 7831
-

- Примерный план
- room.jpg (27.98 КБ) Просмотров: 7831
-
k795xo
-
- Сообщения: 3
- Зарегистрирован: Вт апр 20, 2010 5:26 pm
Антон Перетокин » Ср апр 21, 2010 11:04 am
Здравствуйте, k795xo!
Ваше имя соответствует номеру автомобиля по всей видимости?
Действительно, сводчатый потолок фокусирует звук в какой-то определенной области, что значительно снижает акустический комфорт. Для того, чтобы убрать негативные влияния вогнутых поверхностей, необходимо применять звукопоглощающие покрытия на эти поверхности. И эффективность поглощения прежде всего будет определяться толщиной слоя звукопоглощающего материала.
Из нашей продукции рассмотрите вариант потолочных стекловолокнистых плит Ecophon TAL-M/H и полиуретановых плит Mappysil-350/-360. Ссылка:
http://acoustic.ru/productions/ceiling/
-
Антон Перетокин
-
- Сообщения: 652
- Зарегистрирован: Вт май 19, 2009 11:33 am
- Город: Москва
-
k795xo » Ср апр 21, 2010 12:04 pm
Да, на этом форуме нет возможности поменять отображаемое имя, поэтому использую часть гнз, очень уникальный ник получается) Зовут меня Константин.
А будет ли иметь смысл закрепить на потолке ткань или войлок? Ткань в виде балдахина. Просто сейчас совсем не осталось бюджета на звук, а сделать что-то очень хотелось бы. В последствии конечно используем приведенные материалы. Вообще насколько тот же ковролин на стенах хорош в сравнении с голыми стенами?
С уважением,
Константин Чижов
-
k795xo
-
- Сообщения: 3
- Зарегистрирован: Вт апр 20, 2010 5:26 pm
Антон Перетокин » Чт апр 22, 2010 4:31 pm
Безусловно, ковролин лучше, чем голая отражающая поверхность. Опять же повторюсь, толщина поглотителя играет большую роль.
И всё же у специализированных акустических материалов коэффициент звукопоглощения заведомо выше!!
-
Антон Перетокин
-
- Сообщения: 652
- Зарегистрирован: Вт май 19, 2009 11:33 am
- Город: Москва
-
k795xo » Пт апр 23, 2010 11:01 am
Да, это понятно, спасибо за совет!
Просто сейчас ищем простой и максимально дешевый способ. Через пару-тройку месяцев будем по уму переделывать стены и потолок, скорее всего!
С уважением,
Константин Чижов
-
k795xo
-
- Сообщения: 3
- Зарегистрирован: Вт апр 20, 2010 5:26 pm
Вернуться в Акустика помещений
Кто сейчас на конференции
Сейчас этот форум просматривают: нет зарегистрированных пользователей и гости: 39