Что такое реверберация, планировка домашних кинотеатров и студий звукозаписи, звукорассеивание и звукопоглощение, размещение акустических материалов в музыкальной комнате, дискотеке, конференц-зале, боулинге и т.д.
Модераторы: Виталий Роденков, Александр Фадеев, Антон Перетокин, Николай Канев, Андрей Нечаев, Александр Боганик, root, Наталья Ширгина
-
Andy75
-
- Сообщения: 3
- Зарегистрирован: Чт апр 15, 2010 10:30 pm
- Город: Moscow
Александр Фадеев » Пт апр 16, 2010 10:02 am
Здравствуйте, Andy75.
Геометрия помещения действительно сложная. В подавляющем большинстве случаев комнаты прослушивания симметричны относительно оси прослушивания. В данном случае добиться этого, не пересматривая планировочное решение, невозможно. Таким образом, единственное что можно посоветовать – увеличить фонд звукопоглощения, чтобы максимально убрать неравномерность задержек вторичных отражений и уделить должное внимание инсталляции акустики. То есть расставить аппаратуру так, чтобы более-менее приемлемый звук получить в хотя бы в точке прослушивания.
-
Александр Фадеев
-
- Сообщения: 1473
- Зарегистрирован: Ср июн 25, 2008 1:26 pm
- Город: Москва
-
Andy75 » Пт апр 16, 2010 6:50 pm
Уважаемый Александр,
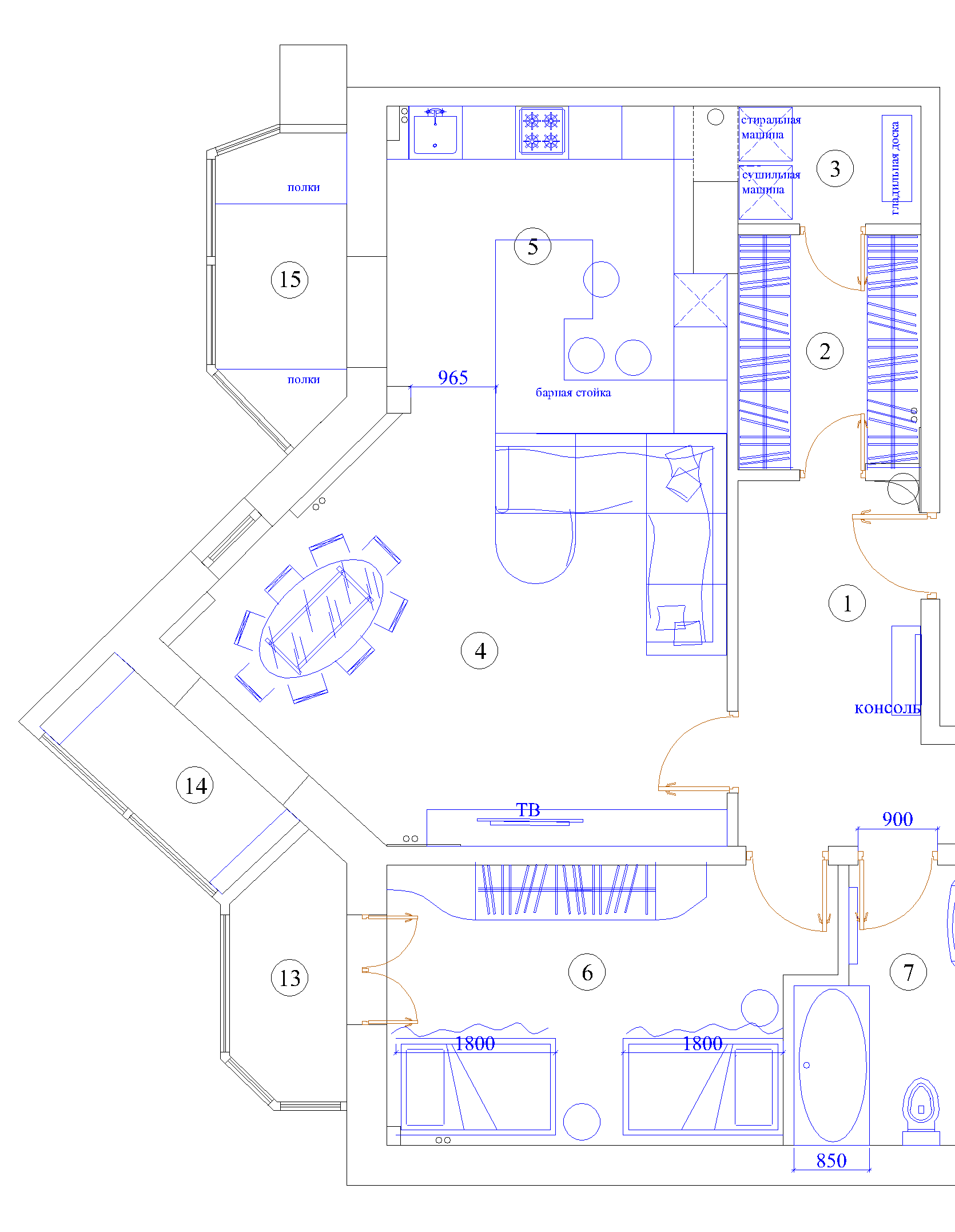
Спасибо за скорый ответ. Прикладываю альтернативный проект. Поможет это улучшить звук? Первый проект нравится больше, поэтому если нет особой разницы, то выберу первый. Буду признателен за совет по расстановке колонок в одобренном варианте.
- Вложения
-

- _11.png (159.43 КБ) Просмотров: 7802
-
Andy75
-
- Сообщения: 3
- Зарегистрирован: Чт апр 15, 2010 10:30 pm
- Город: Moscow
Александр Фадеев » Сб апр 17, 2010 4:33 pm
Принципиального выигрыша второго варианта перед первым я не вижу, поэтому если больше нравится первый – я бы посоветовал остановился на нем.
Что касается установки акустики, то вследствие сложной геометрии применять стандартные методики для симметричных помещений бессмысленно. В подобных случаях проще определить наиболее удачное расположение мониторов эмпирически.
-
Александр Фадеев
-
- Сообщения: 1473
- Зарегистрирован: Ср июн 25, 2008 1:26 pm
- Город: Москва
-
Andy75 » Сб апр 17, 2010 7:33 pm
Еще раз позвольте поблагодарить. Как только дойдем до акустического проекта - свяжемся с Вами.
-
Andy75
-
- Сообщения: 3
- Зарегистрирован: Чт апр 15, 2010 10:30 pm
- Город: Moscow
Вернуться в Акустика помещений
Кто сейчас на конференции
Сейчас этот форум просматривают: нет зарегистрированных пользователей и гости: 1