Акустика Реп базы

Что такое реверберация, планировка домашних кинотеатров и студий звукозаписи, звукорассеивание и звукопоглощение, размещение акустических материалов в музыкальной комнате, дискотеке, конференц-зале, боулинге и т.д.

Модераторы: Виталий Роденков, Александр Фадеев, Антон Перетокин, Николай Канев, Андрей Нечаев, Александр Боганик, root, Наталья Ширгина

Акустика Реп базы

Сообщение byv » Вс дек 23, 2007 11:01 pm

Есть помещение 4 на 5 метров потолки 3.5 метра.

2 стены бетон, 2 пеноблок 10 см. Потолок бетонная плита + в ней посередине проходит еще какое-то ребро жесткости высотой сантиметров 40.

Хочется сделать помещение в котором было комфортно играть и возможно делать демо записи. Вопрос звукоизоляции не стоит, никому мы не мешаем это подвал давно не работающего завода.

Вот вопрос, какими материалами отделывать комнату, и сколько это примерно будет стоить?
byv
 
Сообщения: 1
Зарегистрирован: Вс дек 23, 2007 10:42 pm
Город: Москва

Сообщение Николай Канев » Ср дек 26, 2007 1:00 pm

Для снижения гулкости помещения, которая является основным его акустическим недостатком на сегодняшний день, необходимо применить для отделки звукопоглощающие материалы. Конкретный выбор зависит от бюджета проекта и предполагаемого дизайна помещения.
Наиболее простой и при этом достаточно эффективный вариант - это применение подвесного звукопоглощающего потолка Ecophon и звукопоглощающих Herakustik плит на стенах.
Николай Канев
 
Сообщения: 878
Зарегистрирован: Ср ноя 08, 2006 9:57 am

Акустика реп базы

Сообщение Venger » Ср янв 02, 2008 10:25 pm

У меня есть комната размером 4х3.5м и высотой 2,5м, потолок и стены - саман (частный дом), планируеться обшивка гипсокартоном. Хочу использовать её как реп базу и как свою комнатую. В ней будет находиться: барабанная установка, компьютерный стол с кампом, не большой шифонер и диван. Так вот хочу узнать как улучшить акустику с помощью не дорогово материала ,звукоизоляция возможна только при минимальных расходах и уменьшения пространства.Возможно ли расположить материалы под гипсокартоном?
Venger
 
Сообщения: 2
Зарегистрирован: Ср янв 02, 2008 9:29 pm
Город: Донецк

Сообщение Николай Канев » Ср янв 09, 2008 9:32 am

У меня есть комната размером 4х3.5м и высотой 2,5м, потолок и стены - саман (частный дом), планируеться обшивка гипсокартоном. Хочу использовать её как реп базу и как свою комнатую. В ней будет находиться: барабанная установка, компьютерный стол с кампом, не большой шифонер и диван. Так вот хочу узнать как улучшить акустику с помощью не дорогово материала ,звукоизоляция возможна только при минимальных расходах и уменьшения пространства.Возможно ли расположить материалы под гипсокартоном?


Наиболее бюджетный вариант предложен выше.
А звукоизоляцию можно устроить с помощью гипсокартонных облицовок на независимом от стены каркасе с использованием звукопоглощающих плит Шуманет-БМ.
Последний раз редактировалось Николай Канев Ср дек 23, 2009 11:44 am, всего редактировалось 1 раз.
Николай Канев
 
Сообщения: 878
Зарегистрирован: Ср ноя 08, 2006 9:57 am

Сообщение Venger » Ср янв 09, 2008 11:38 pm

Недавно слышал предложение тупо поверх гипсокартона набить ковролин, а под гипс... мин.вату как такое предложение? И еще по поводу подвесного потолка сколько он "украдёт" места ведь при высоте 2,5м это важно ( плюс будет еще гипсокартон)? И вообще играет ли роль саман и прочая мебель в комнате и что сней делать?И какой мощности калонки подойдут для этой комнаты?
Venger
 
Сообщения: 2
Зарегистрирован: Ср янв 02, 2008 9:29 pm
Город: Донецк

Сообщение Николай Канев » Пт янв 11, 2008 9:47 am

Все правильно - мин.вата за гипсокартоном и есть звукоизоляционная конструкция. Обивка ковролином снижает гулкость помещения - поэтому это уже не звукоизоляция, а акустическая отделка помещения. Минимальная толщина подвесного потолка на прямых подвесах примерно 7 см (5см мин.вата + 2 см ГКЛ).
То, из чего сделаны сами ограждающие конструкции помещения репетиционной, на акустику комнаты влиятет мало - ведь все обшивается гипсокартоном...
Мебель может способствовать звукорассеянию, поэтому при разумном количестве, она благоприятно может повлиять на акустику...
А вот мощность выбарать Вам - все зависит от того насколько громко должно быть в помщении...
Николай Канев
 
Сообщения: 878
Зарегистрирован: Ср ноя 08, 2006 9:57 am

Сообщение Слава17 » Чт июл 17, 2008 4:26 pm

Вот у меня есть помещение 5*3 метра и высотой 2,8 в подвале старого клуба пионеров(строение блочное стены толщиной см 25)хочу сделать репетиционную базу - соседей нет поэтому на шум никто жаловаться не будет ,хотя комнека не точно прямоугольная ( есть выступ несущей балки 30*35 но в помещение безумное эхо прошу написать какой способ звукоизоляции мне надо применить из тех которые у вас на сайте описаны при бюджете 20 - 25 тыс :?:
Последний раз редактировалось Слава17 Сб июл 19, 2008 2:14 pm, всего редактировалось 1 раз.
Слава17
 
Сообщения: 2
Зарегистрирован: Чт июл 17, 2008 4:20 pm
Город: Екатеринбург

Сообщение Виталий Роденков » Пт июл 18, 2008 11:47 am

Вам необходимо смонтировать звукопоглощающие конструкции, а не звукоизолирующие.
Бюджет 20-25 тыс.руб несколько скромный :( .Рассмотрите следующий вариант, который в общей сложности обойдется в ~35000руб. не учитывая стоимости напольного покрытия:
1. На потолке смонтировать акустический потолок ECOPHON Tal-H, приблизительная стоимость с подвесной системой 1 кв.м 600 руб/м2;
2. На пол уложить линолеум или ковролин.
3. В углах помещения необходимо смонтировать широкополосные звукопоглотители, т.е. сделать скошенные углы (гипотенуза треугольника в плане должна быть не менее 800мм) заполненные звукопоглощающими плитами ШУМАНЕТ-БМ от пола до потолка, которые затем необходимо закрыть синтепоном толщиной 10мм и драпировать например тканью CARA. Каждый угловой элемент обойдется приблизительно в 4000руб/угол.
4. И наконец наклеить фрагментарно на оставшуюся площадь стен (в пропорции 50/50% - отражение/поглощение) плиты ECOPHON Tal-H толщиной 30мм, приблизительная стоимость с клеем 1 кв.м 500 руб/м2. Плиты следует монтировать таким образом, что бы не было отражающих участков друг напротив друга.
Виталий Роденков
 
Сообщения: 1139
Зарегистрирован: Чт май 03, 2007 11:02 am
Город: Москва

Сообщение Слава17 » Сб июл 19, 2008 1:22 pm

:D спасибо - будем делать
Только еще вопрос - что делать с балкой - её тоже углами обшить ?
И нужны ли плиты мин ваты под потолочными плитами ?
Слава17
 
Сообщения: 2
Зарегистрирован: Чт июл 17, 2008 4:20 pm
Город: Екатеринбург

Сообщение Виталий Роденков » Вт июл 22, 2008 10:29 am

Если балка не нарушает симметричности помещения и имеет незначительную площадь, то можно её ничем не облицовывать. Или, как вариант обклеить ее плитами Ecophon TAL-H.
Укладывать плиты Шуманет-БМ над потолочными плитами Ecophon не рекомендовал по причине минимизации бюджета. TAL-H толщиной 30мм имеет неплохое поглощение даже без дополнительного слоя поглотителя за ним.
Виталий Роденков
 
Сообщения: 1139
Зарегистрирован: Чт май 03, 2007 11:02 am
Город: Москва

Сообщение Festonator » Пн янв 18, 2010 12:58 pm

Ничего в этом не понимаю и вот вопрос, как и чем вообще по правилам должно быть подготовлено помещение для шумных репетиций? Стены, потолок, пол ? Хочется сделать всё, но (естественно) самое дешевое.
Помещение 6Х6 потолок 3м стены бетон окон нет. Какова будет примерная стоимость самой дешевой подготовки "под ключ" помещения для репетиций, при том чтобы всё было по правилам? :?:
Festonator
 
Сообщения: 1
Зарегистрирован: Пн янв 18, 2010 12:40 pm

Сообщение Виталий Роденков » Ср фев 03, 2010 11:48 am

Дешево и по всем правилам, к сожалению не возможно выполнить.

Если из затрат даже и исключить специальные звукоизолирующие и звукопоглощающие материалы, то стоимость общестроительных материалов все равно останется внушительной.

Для эффективной звукоизоляции такого помещения, как репбаза необходимо устройство "комнаты в комнате", плюс в дополнение неоходимо помещение обработать звукопоглощающими материалами для снижения гулкости помещения.

Если Вы в Москве, то лучше с этим вопросом обратиться в инженерный отдел по тел. 785-10-80, что бы обсудить возможные варианты.

Но хочу сразу отметить, что полная звукоизоляция помещения 36 м2 без коррекции акустики может обойтись "под ключ" 300-400 тыс.руб.
Виталий Роденков
 
Сообщения: 1139
Зарегистрирован: Чт май 03, 2007 11:02 am
Город: Москва

Звукопоглощение для студии

Сообщение Rad-Event » Ср фев 03, 2010 6:10 pm

Здравствуйте! Помогите подобрать материал для организации звукопоглощения в студии звукозаписи, 6.5м на 5м. Нужен наиболее качественный вариант, убивающий реверберацию, на потолок и стены. Если возможно, подскажите также как поступить с бетонной колонной (0.5 кв.м.) в помещении.
Заранее спасибо.
Rad-Event
 
Сообщения: 6
Зарегистрирован: Ср фев 03, 2010 6:02 pm

Сообщение Виталий Роденков » Чт фев 04, 2010 1:09 pm

Добрый день, Rad-Event!
Уж коль в этом посте неоднократно встает вопрос о бюджете мероприятий, то замечу, что стоимость всех возможных мероприятий очень сильно варьирует. Это определяется не только выбранными акустических решениями (устройство НЧ поглотителей и рассеивающих элементов), но и от типа акустических панелей, которые являются финишными и стоимость которых значительно отличается в зависимости от их внешнего вида.
Наиболее качественный вариант включает в себя:
1. Устройство НЧ поглотителей (угловые звукопоглощающие элементы, панельные звукопоглотители и объемные подвесные звукопоглотители);
2. Монтаж звукопоглощающих потолков и облицовок стен эффективно поглощающих в области средних и высоких частот (Heradesign, Ecophon, Décor Acoustic, Gyptone).
Не все могут себе позволить выполнение п.1 не только в связи с увеличением затрат, но и потому, что НЧ поглотители значительно съедают пространство в помещении.
Колонну необходимо облицевать, например звукопоглощающими панелями Heradesign или Ecophon.
В целом вопрос не тривиальный. Предоставьте, пожалуйста, план помещения и укажите высоту потолков. Общение можно продолжить в форуме, но если Вы находитесь в Москве лучше подъехать в офис и здесь все обсудить. В офисе представлены различные акустические материалы и решения, которые не помешает увидеть вживую.
Виталий Роденков
 
Сообщения: 1139
Зарегистрирован: Чт май 03, 2007 11:02 am
Город: Москва

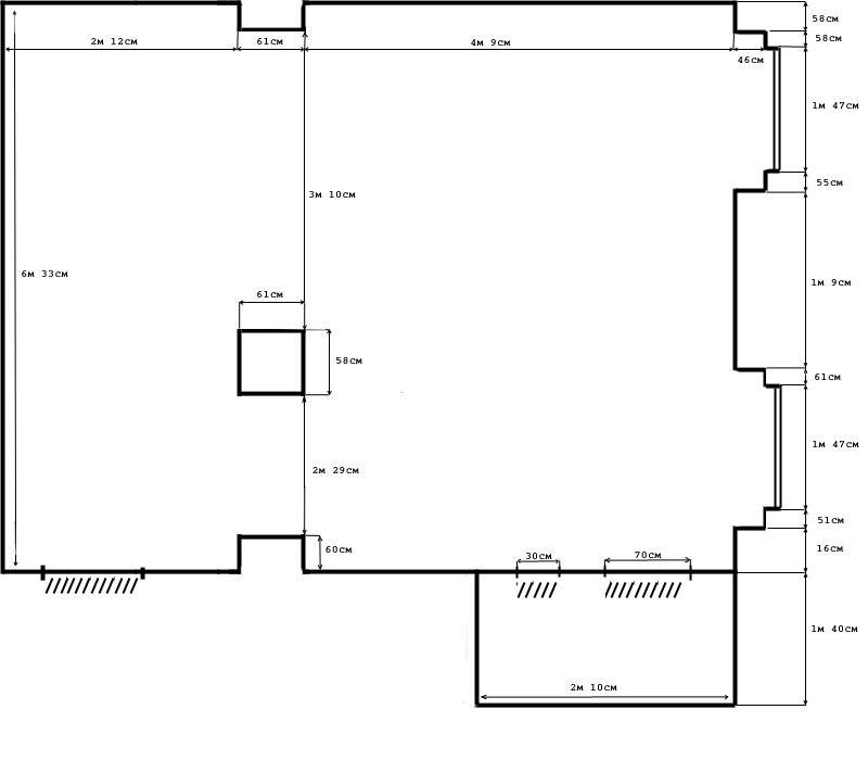
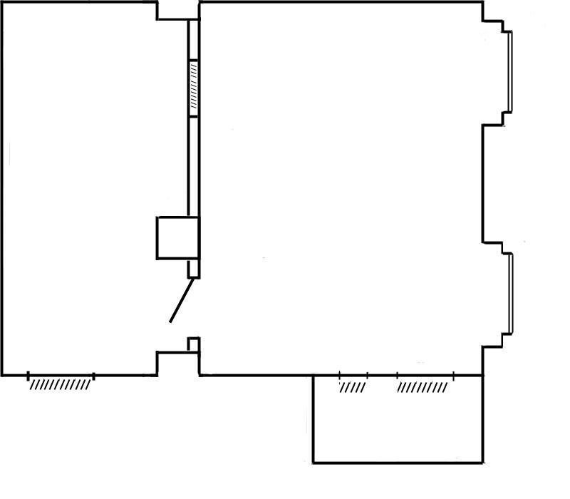
Сообщение Rad-Event » Пт фев 05, 2010 5:50 am

К сожалению я нахожусь не в Москве, поэтому не смогу подъехать в офис. Прикладываю два чертежа: Mplan - помещение на данный момент, и Fplan - помещение с дополнительной стенкой. Прошу прощения за качество чертежей - сказывается отсутствие автокада.
Задумка была - возвести стену (если потребуется, до 60см толщиной), отделив что-то вроде коридора от основной комнаты. Комната внизу справа - либо выделенное помещение под запись вокала, либо помещение для звукорежиссера с пультом. Но из-за размеров, мне кажется, туда не поместится первый вариант.
Более вероятно разместить звукорежиссера в "коридоре" вверху, сделав окно в новой перегородке.
Вопросы такие: какие материалы лучше всего применить для звукопоглощения в основной комнате, какова приблизительная стоимость материалов для качественного ремонта в основной комнате?
Реально ли уложиться в 60-70 т.р.? Из чего лучше сделать перегородку?
Заранее большое спасибо за ответы.
Вложения
Fplan.jpg
Fplan.jpg (59.15 КБ) Просмотров: 19085
Mplan.jpg
Mplan.jpg (70.97 КБ) Просмотров: 19085
Rad-Event
 
Сообщения: 6
Зарегистрирован: Ср фев 03, 2010 6:02 pm

След.

Вернуться в Акустика помещений

Кто сейчас на конференции

Сейчас этот форум просматривают: нет зарегистрированных пользователей и гости: 34

cron