Что такое "плавающий пол", как правильно возвести звукоизоляционную перегородку, как снизить уровень шума в боулинге, фитнесс-зале, офисе, как звукоизолировать вентилятор, насос, домашний кинотеатр и т.д.
Модераторы: Виталий Роденков, Александр Фадеев, Антон Перетокин, Николай Канев, Андрей Нечаев, Александр Боганик, root, Наталья Ширгина
zar1 » Чт май 13, 2021 10:37 am
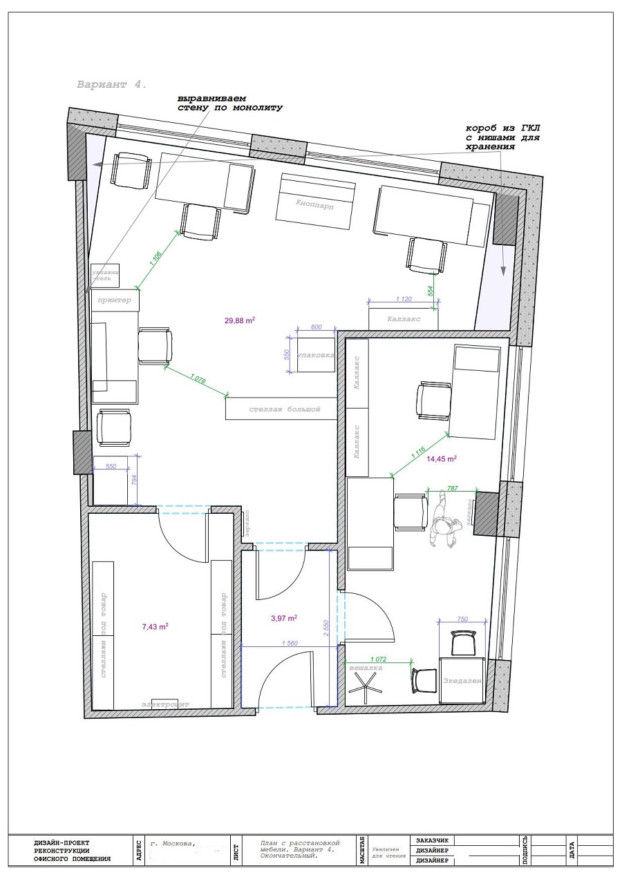
Имеем офис 30 м2 -голые стены-высота потолков 3.5 метра. Как сделать комфортным по звуку для работы офис где работают 3 человека. Сильно не шумим, по телефону-компьютеру разговариваем. На полу ковролин положим (и имеем уже шумоизоляцию по типу плавающий пол). Потолки думаем делать в основном натяжные и по углам гипсокартон (там еще светодиодная лента будет по периметру). 2 стола перед окнами имеют шумоизолирующие перегородки из Икеа возле столов. Маленький офис (где 14 м2) -шумоизоляция не обязательна, также и склад, не обязательно.
Хотелось чтоб комфортно было находиться и офис не звенел. На стенах висят (будут) дипломы (об участии в выставках) и 3 плаката из пвх пленки большие. Стены будут в стеклообоях -так как практично.
За окнами ездят поезда и проходит жд ветка, но окна хорошие и шум от проходящих поездов мало слышен. Что можно сделать для акустического комфорта (ударного шума думаю не должно быть-так как офисы и днем вести шумные работы запрещено).
- Вложения
-

- Вариант 4-ф.jpg (196.83 КБ) Просмотров: 35221
-
Вариант 4-форум.pdf
- (110.98 КБ) Скачиваний: 1922
Москва
-
zar1
-
- Сообщения: 21
- Зарегистрирован: Пн июл 11, 2011 11:12 am
zar1 » Сб май 15, 2021 8:06 pm
подскажите если на потолок использовать натяжной материал с перфорацией и под ним заложить шуманет эко 50мм-будет ли лучше в офисе по акустике по сравнению с обычным натяжным без шуманет эко. Я так понимаю шуманет эко будет бесполезен с обычным натяжным. Высота потолков 3.3 м- просто при такой высоте будет потолок если в дырочку то будет выглядеть серым а не белым и будет не очень красиво.
Москва
-
zar1
-
- Сообщения: 21
- Зарегистрирован: Пн июл 11, 2011 11:12 am
Андрей Юренко » Чт сен 16, 2021 1:30 pm
Здравствуйте. Если потолок будет натяжной, но с перфорацией, то есть материал без эмиссии частиц - Шуманет Термо ЭКО
-
Андрей Юренко
-
- Сообщения: 575
- Зарегистрирован: Чт окт 27, 2016 11:49 am
- Город: Краснодар
Вернуться в Звукоизоляция
Кто сейчас на конференции
Сейчас этот форум просматривают: нет зарегистрированных пользователей и гости: 43