Что такое реверберация, планировка домашних кинотеатров и студий звукозаписи, звукорассеивание и звукопоглощение, размещение акустических материалов в музыкальной комнате, дискотеке, конференц-зале, боулинге и т.д.
Модераторы: Виталий Роденков, Александр Фадеев, Антон Перетокин, Николай Канев, Андрей Нечаев, Александр Боганик, root, Наталья Ширгина
gia85 » Ср июл 20, 2011 9:18 am
Доброго всем дня!
Нужен совет специалиста или человека, имеющего опыт в звукоизоляции и акустическом оформлении помещений .
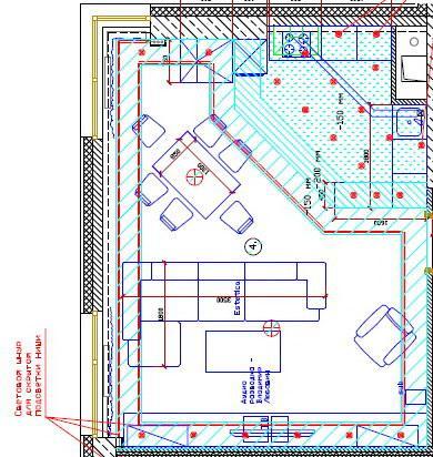
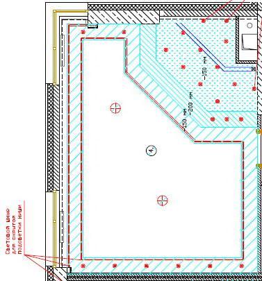
В настоящий момент провожу ремонт в квартире, и одну из комнат (гостинная+кухня = 40 м2) хочу совместить по назначению с домашним кинотеатром 7.1 и комнатой для прослушивание музыки. Для звукоизоляции комнаты от других помещений стены были возведены из кирпича в 2 слоя (внутренний в 1/2 , внешний в 1\4 кирпича) с заполнением внутреннего пространства (5 см) шуманетом. Стяжка плавающая с подложкой из материала производства технониколь (аналог шуманет 100, только толще). Потолок (рис. 3,4) будет частично из гипсокартона (зона кухни + козырек по периметру со скрытой подсветкой ). Вопрос заключается в центральной части потолка (белый цвет на рисунках 3,4). Как его лучше сделать, что бы акустика помещения была лучше ( звукоизоляция от соседей сверху не так критична)?
Мне пока видится три варианта : 1. просто заштукатурить эту часть потолка,2. сделать ее из гипсокартона с закладыванием мин ватой, 3. сделать натяжной потолок с мин ватой внутри.
Что вы думаете по поводу того, что бы заложить мин ватой и остальную часть потолка (козырек+ зона кухни )?
Стены в помещении будут оформляться обоями. Напольные покрытия - паркетная доска и плитка. Напротив ТВ - ковер.
На модели (рис. 1,2) я постарался достаточно точно изобразить, как будет выглядеть интерьер помещения.
С учетом всего изложенного и предложенного хотелось бы узнать, что можно ожидать от такого помещения в качестве его акустических свойств?
- Вложения
-

- 4
- 4.jpg (74.41 КБ) Просмотров: 13429
-

- 3
- 3.jpg (56.12 КБ) Просмотров: 13429
-

- 2
- 2.jpg (171.1 КБ) Просмотров: 13429
-

- 1
- 1.jpg (170.41 КБ) Просмотров: 13429
-
gia85
-
- Сообщения: 5
- Зарегистрирован: Ср июл 20, 2011 9:04 am
Александр Фадеев » Ср июл 20, 2011 4:39 pm
Здравствуйте, gia85.
Строго говоря, поставленная задача не решаема в том смысле, что концепция акустической отделки помещений домашнего кинотеатра и комнаты прослушивания разные. Если в случае домашнего кинотеатра помещение должно быть сильно заглушенным, то для комнаты прослушивания такая среда будет дефектна.
Учитывая, что помещение будет эксплуатироваться и еще как кухня-гостиная, предлагаю сделать в некотором смысле универсальное помещение, для этого потолок стоит подглушить. Вариант акустического натяжного потолка с заполнением звукопоглотителем для этого вполне подходит. В качестве поглотителя можно рассмотреть материал типа Ecophon Tal-H.
Неплохо было бы разместить поглощающие облицовки и на стенах, хотя бы фрагментарно.
-
Александр Фадеев
-
- Сообщения: 1473
- Зарегистрирован: Ср июн 25, 2008 1:26 pm
- Город: Москва
-
gia85 » Пт июл 22, 2011 10:01 am
Какая стоимость у экофон тал? ОН экологически безопасен?
Как он в сравнении с шуманетом ЭКО или СК ?
По потоду стен.. я думаю разместить панели по стенам и декорировать их под картины .
-
gia85
-
- Сообщения: 5
- Зарегистрирован: Ср июл 20, 2011 9:04 am
Александр Фадеев » Пт июл 22, 2011 3:42 pm
Какая стоимость у экофон тал? ОН экологически безопасен?
Стоимость плит Ecophon серии Tal в офисах продаж Acoustic Group указана в действующем прайс-листе:
http://www.acoustic.ru/price_list/Информация по экологичности материала:
http://www.acoustic.ru/productions/ceil ... hon/tecno/Как он в сравнении с шуманетом ЭКО или СК ?
Толщина звукопоглощающих плит «Шуманет-ЭКО» и «Шуманет-СК» больше и составляет 50 мм. За счет этого у них выше звукопоглощение.
По потоду стен.. я думаю разместить панели по стенам и декорировать их под картины .
Предлагаю рассмотреть плиты «Heradesign» в качестве финишного материала звукопоглощающей облицовки или экрана. Данный материал можно не только окрашивать в любой цвет. На него на техническом принтере можно наносить любые изображения, что позволит одновременно решить задачу по снижению гулкости и декоративного оформления помещения.
-
Александр Фадеев
-
- Сообщения: 1473
- Зарегистрирован: Ср июн 25, 2008 1:26 pm
- Город: Москва
-
gia85 » Пн июл 25, 2011 8:37 am
Спасибо за совет!
Возник еще вопрос: Что будет со звуком, если в качестве натяжного потолка использывать обычную пленку ПВХ?
-
gia85
-
- Сообщения: 5
- Зарегистрирован: Ср июл 20, 2011 9:04 am
Александр Фадеев » Пн июл 25, 2011 9:06 am
Полотно акустического натяжного потолка имеет микроперфорацию, которая позволяет в большей степени работать звукопоглотителю за полотном. Отсутствие перфорации приведет к снижению звукопоглощения на высоких частотах.
-
Александр Фадеев
-
- Сообщения: 1473
- Зарегистрирован: Ср июн 25, 2008 1:26 pm
- Город: Москва
-
gia85 » Вт июл 26, 2011 8:58 am
А как вы относитесь к звукопоглощающей штукатурке?
Она вроде не так сильно глушит помещение, что должно быть лучше для прослушивания музыки . И позволяет сделать потолок чуть выше..
-
gia85
-
- Сообщения: 5
- Зарегистрирован: Ср июл 20, 2011 9:04 am
Александр Фадеев » Вт июл 26, 2011 9:26 am
Звукопоглощающие штукатурки, как правило, представляют собой двухслойный «пирог» из подосновы на основе пористого материала (волокнистые материалы, стеклогранулят ит.д.) и специального штукатурного слоя. В качества варианта акустической отделки поверхности потолка такое решение вполне годится. К минусам акустических штукатурок я бы отнес невысокие прочностные характеристики.
-
Александр Фадеев
-
- Сообщения: 1473
- Зарегистрирован: Ср июн 25, 2008 1:26 pm
- Город: Москва
-
gia85 » Вт авг 02, 2011 9:51 am
Это можно отнести к существенным минусам.
Рассмотрев множество вариантов, начинаю склоняюсь к экофону, прикрытым тканевым натяжным потолком.Единственное, что меня волнует, не будет ли переглушена комната?! (В этой связи отказался от шуманета)
Может для верности использовать панели меньшей толщиты, например Экофон Опта (2см)??
-
gia85
-
- Сообщения: 5
- Зарегистрирован: Ср июл 20, 2011 9:04 am
Александр Фадеев » Ср авг 03, 2011 8:53 am
В данном помещении не так много поглощающих поверхностей и предметов интерьера, поэтому переглушить помещение звукопоглощающим потолком вряд ли удастся.
В любом случае естественную гулкость комнаты Вы сможете оценить до монтажа натяжного потолка (как правило, он монтируется после оклейки стен обоями). Если гулкость будет не высокая, то плиты «Ecophon» за полотном натяжного потолка можно расположить не по всей площади, а, например, в шахматном порядке.
-
Александр Фадеев
-
- Сообщения: 1473
- Зарегистрирован: Ср июн 25, 2008 1:26 pm
- Город: Москва
-
Вернуться в Акустика помещений
Кто сейчас на конференции
Сейчас этот форум просматривают: нет зарегистрированных пользователей и гости: 36