Бюджетная звукоизоляция однушки под сдачу в монолитном доме

Что такое "плавающий пол", как правильно возвести звукоизоляционную перегородку, как снизить уровень шума в боулинге, фитнесс-зале, офисе, как звукоизолировать вентилятор, насос, домашний кинотеатр и т.д.

Модераторы: Виталий Роденков, Александр Фадеев, Антон Перетокин, Николай Канев, Андрей Нечаев, Александр Боганик, root, Наталья Ширгина

Бюджетная звукоизоляция однушки под сдачу в монолитном доме

Сообщение zar1 » Пн мар 23, 2015 9:52 am

Порекомендуйте бюджетную звуко-шумоизоляцию для однушки (планируется под сдачу) в монолитном доме. Управляющая компания -обязала всех жильцов сделать шумоизоляцию пола. Порекомендуйте где и что делать. Стена справа -там соседей нет, там улица.
Вложения
256 кб наш вариант.jpg
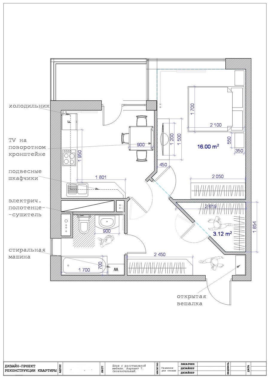
Однушка в монолитном доме-под сдачу планируется. нужен эконом вариант необходимой звукоизоляции. справа стенка -это конец дома. 10 этаж.
256 кб наш вариант.jpg (190.46 КБ) Просмотров: 9435
Москва
zar1
 
Сообщения: 21
Зарегистрирован: Пн июл 11, 2011 11:12 am

Re: Бюджетная звукоизоляция однушки под сдачу в монолитном д

Сообщение Александр Фадеев » Пн мар 23, 2015 10:00 am

Здравствуйте, zar1.
Для обеспечения нормативной звукоизоляции в большинстве случаев достаточно сделать "плавающую" стяжку по рулонному материалу по всей площади квартиры. Предлагаю рассмотреть "Акуфлекс Комби":
http://akustik.ru/productions/walls/izo ... lex_comby/
Данный материал помимо звукоизоляционных обладает гидроизоляционными свойствами, что актуально для санузла и кухни.
Александр Фадеев
 
Сообщения: 1473
Зарегистрирован: Ср июн 25, 2008 1:26 pm
Город: Москва

Re: Бюджетная звукоизоляция однушки под сдачу в монолитном д

Сообщение dima_boykov » Пн мар 23, 2015 2:33 pm

Александр Фадеев писал(а):Здравствуйте, zar1.
Для обеспечения нормативной звукоизоляции в большинстве случаев достаточно сделать "плавающую" стяжку по рулонному материалу по всей площади квартиры. Предлагаю рассмотреть "Акуфлекс Комби":
http://akustik.ru/productions/walls/izo ... lex_comby/
Данный материал помимо звукоизоляционных обладает гидроизоляционными свойствами, что актуально для санузла и кухни.


А в чем разница между Шуманетами и Акуфлексом?
Почему он стоит дешевле Шуманет-100, а показатели у него лучше?
dima_boykov
 
Сообщения: 1
Зарегистрирован: Пн мар 23, 2015 1:05 pm
Город: Москва

Re: Бюджетная звукоизоляция однушки под сдачу в монолитном д

Сообщение Александр Фадеев » Пн мар 23, 2015 2:45 pm

Дело в том, что "Шуманет 100" - это материал, который производится более 10 лет по неизменной технологии. "Акуфлекс Комби" - относительно новый материал, при изготовлении которого оптимизирован производственный процесс, что снижает себестоимость.
Александр Фадеев
 
Сообщения: 1473
Зарегистрирован: Ср июн 25, 2008 1:26 pm
Город: Москва

Re: Бюджетная звукоизоляция однушки под сдачу в монолитном д

Сообщение zar1 » Ср сен 21, 2016 3:10 pm

сейчас начал делать ремонт в другой квартире -все похоже как и в первой . где я положил этот материал. Возможно что то поменялось за год, появился новый материал ? я вот смотрю такого названия на сайте больше нет.
Какой материал мне ложить сейчас на пол? и вопрос по стене там где стоит кровать-с той стороны соседи, со стороны где кухня и туалет с ванной там улица. Что можно положить на стену, чтоб уменьшить шум от возможных шумных соседей или чтоб мы им не мешали.
Как сочетать (технология укладки) материал на пол и теплые полы (будут на кухне, коридоре, балконе и туалет с ванной)?
Кладут ли материал на балконе?
Вложения
2_мебель.jpg
2_мебель.jpg (229.1 КБ) Просмотров: 8635
Москва
zar1
 
Сообщения: 21
Зарегистрирован: Пн июл 11, 2011 11:12 am

Re: Бюджетная звукоизоляция однушки под сдачу в монолитном д

Сообщение Александр Фадеев » Чт сен 22, 2016 1:24 pm

сейчас начал делать ремонт в другой квартире -все похоже как и в первой . где я положил этот материал. Возможно что то поменялось за год, появился новый материал ? я вот смотрю такого названия на сайте больше нет.
Какой материал мне ложить сейчас на пол? и вопрос по стене там где стоит кровать-с той стороны соседи, со стороны где кухня и туалет с ванной там улица.

В этом году сняты с производства "Шуманет-100" и "Шуманет-100Супер", а материалы "Акуфлекс Супер" и "Акуфлекс Комби" поменяли названия. Теперь это "Шуманет-100Гидро" и"Шуманет-100Комби".
Что можно положить на стену, чтоб уменьшить шум от возможных шумных соседей или чтоб мы им не мешали.

Рассмотрите звукоизоляционные конструкции стен. Для более конкретной рекомендации необходима информация об изолируемой перегородке (толщина, состав).
Как сочетать (технология укладки) материал на пол и теплые полы (будут на кухне, коридоре, балконе и туалет с ванной)?

Если речь идёт об электрических полах, то они обычно укладываются в слое плиточного клея. Наличие или отсутствие звукоизоляционного материала под стяжкой на это никак не влияет.
Кладут ли материал на балконе?

В случае утепления и объединения с кухней - имеет смысл.
Александр Фадеев
 
Сообщения: 1473
Зарегистрирован: Ср июн 25, 2008 1:26 pm
Город: Москва

Re: Бюджетная звукоизоляция однушки под сдачу в монолитном д

Сообщение zar1 » Чт сен 22, 2016 4:17 pm

что лучше положить в моих условиях Шуманет-100Гидро или Шуманет-100Комби ? по характеристикам я смотрю один и тот же материал с одинаковой толщиной. В цене также практически в одну цену. Хм , правда смотрю вес разный при одинаковой толщине материала.
Объяединять балкон с кухней не буду. Балкон будет отдельно балконом -но теплым (теплые полы и утепление потолка и стен , а также буду ставить стеклопакет). В таком случае может и положить материал ?
А так как я понимаю материал кладется везде по периметру квартиры с заведением на стены, обходим трубы также. понятно.
по стене буду думать- это монолитный дом. а вот толщина стены мне не известна. постараюсь выяснить. и что за материал также
Москва
zar1
 
Сообщения: 21
Зарегистрирован: Пн июл 11, 2011 11:12 am

Re: Бюджетная звукоизоляция однушки под сдачу в монолитном д

Сообщение Александр Фадеев » Чт сен 22, 2016 4:39 pm

что лучше положить в моих условиях Шуманет-100Гидро или Шуманет-100Комби ? по характеристикам я смотрю один и тот же материал с одинаковой толщиной. В цене также практически в одну цену. Хм , правда смотрю вес разный при одинаковой толщине материала.

Разница в толщине битума. "Шуманет-100Гидро" - полноценная гидроизоляция, обратите внимание на него. Это дополнительное преимущество при одинаковом порядке снижения ударного шума.
Объяединять балкон с кухней не буду. Балкон будет отдельно балконом -но теплым (теплые полы и утепление потолка и стен , а также буду ставить стеклопакет). В таком случае может и положить материал ?
Наличие звукоизоляции не ухудшит ситуацию :)
Александр Фадеев
 
Сообщения: 1473
Зарегистрирован: Ср июн 25, 2008 1:26 pm
Город: Москва

Re: Бюджетная звукоизоляция однушки под сдачу в монолитном д

Сообщение zar1 » Чт ноя 17, 2016 7:11 pm

материал приобрел у вас. вопрос как его совместить с теплым полом?
хочу положить материал-дальше заливной пол с арматурой и дальше в чистовой пол вставить теплый пол Теплолюкс Profiroll. хочу отказаться от подложки для теплого пола фольгированный утеплитель на основе вспененного полиэтилена Порилекс. Скажите может быть это опасно для материала шумоизолирующего? или ничего страшного и так можно делать
Москва
zar1
 
Сообщения: 21
Зарегистрирован: Пн июл 11, 2011 11:12 am

Re: Бюджетная звукоизоляция однушки под сдачу в монолитном д

Сообщение zar1 » Чт ноя 17, 2016 9:31 pm

а можно положить шумоизоляцию а на него сразу подложку для теплого пола и потом стяжка? или как поступают в таких ситуациях? или шумостоп гидро 100 является подложкой для теплого пола также?
Москва
zar1
 
Сообщения: 21
Зарегистрирован: Пн июл 11, 2011 11:12 am

Re: Бюджетная звукоизоляция однушки под сдачу в монолитном д

Сообщение Наталья Ширгина » Пт ноя 18, 2016 9:34 am

Добрый день!

Шуманет-100Гидро не является подложкой для теплого пола.
Если использовать теплый пол в виде матов, то они укладываются после устройства стяжки непосредственно в клей для плитки, такой способ наименее трудоемкий.
Если использовать нагревательные кабели или трубы с водой, то добавляется необходимость устройства второй стяжки, которая скроет кабели или трубы.
Наталья Ширгина
 
Сообщения: 535
Зарегистрирован: Пт май 08, 2009 11:24 am
Город: Москва

Re: Бюджетная звукоизоляция однушки под сдачу в монолитном д

Сообщение zar1 » Пт ноя 18, 2016 10:03 am

А если на шуманет положить подложку и сверху в наливной пол положить кабель, чтоб уйти от второго слоя
Москва
zar1
 
Сообщения: 21
Зарегистрирован: Пн июл 11, 2011 11:12 am

Re: Бюджетная звукоизоляция однушки под сдачу в монолитном д

Сообщение Наталья Ширгина » Пт ноя 18, 2016 11:04 am

Возможным минусом такого решения будет недостаточная толщина и низкая прочность стяжки в месте укладки кабеля. Обратите внимание, что кабель не должен быть закреплен к плите перекрытия, чтобы избежать жесткой связи и снижения звукоизоляции.
Наталья Ширгина
 
Сообщения: 535
Зарегистрирован: Пт май 08, 2009 11:24 am
Город: Москва

Re: Бюджетная звукоизоляция однушки под сдачу в монолитном д

Сообщение zar1 » Пт ноя 18, 2016 11:56 am

Решили отказаться от подложки тёплого пола. Шумостоп, дальше стяжка с сеткой прутиком обрешётка дальше Теплый пол в стяжке и сверху плитка. От матов решили отказаться. И от подложки также теплоизолирующий.
Москва
zar1
 
Сообщения: 21
Зарегистрирован: Пн июл 11, 2011 11:12 am


Вернуться в Звукоизоляция

Кто сейчас на конференции

Сейчас этот форум просматривают: нет зарегистрированных пользователей и гости: 51

cron