Всем привет!
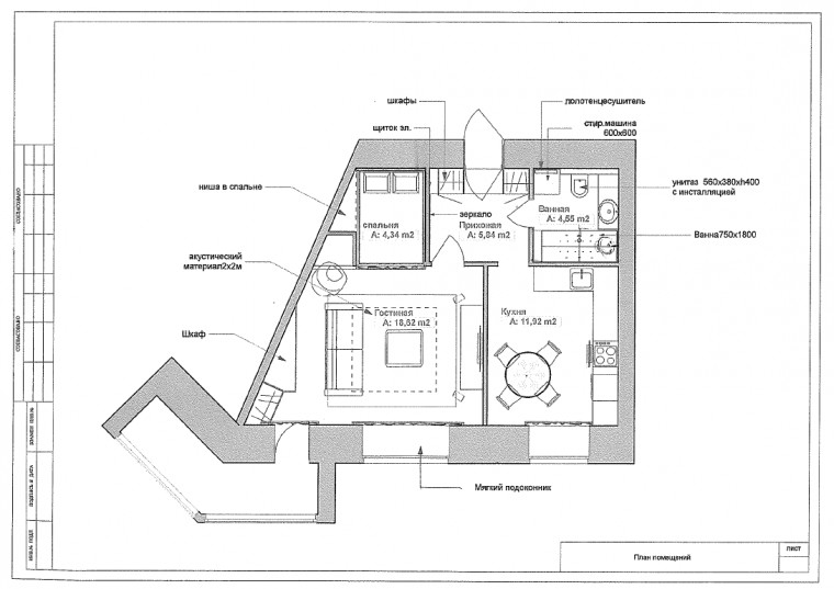
Имеется комната нестандартной планировки в однокомнатной квартире кирпичного жилого дома, площадь комнаты 24 кв. м, высота потолков 2,75 м. В самых ближайших планах предстоит ремонт, при котором хотелось бы произвести звукоизоляцию и акустическую обработку помещения для комфортного прослушивания музыки (кино не интересует). Расположение для АС и предметов интерьера уже выбрано (надеюсь удачное), менять его крайне бы не хотелось (рисунок 1).
Был разработан предварительный дизайн проект (рисунки 2-5).
Аудиосистема также в наличии, достаточно качественная с нейтральным звучанием - Dynaudio Excite x32 + Nad C 390DD. В случае недостатка баса буду готов докупить саб.
На данный момент имею ремонт от строителей и мебель по минимуму (диван, ковер, легкие шторы, небольшой шкаф). Звучание ярковатое, по басу небольшая неравномерность есть, но существенных завалов после долгих прослушиваний различного материала не увидел (в предыдущей квартире с этим было хуже).
Чтобы существенно не терять пространство, думаю сделать звукоизоизоляционную обработку только пола, потолка и тыловой стены, граничащей с соседями. Левая стена до общего коридора и так толстая (80 см), фронтальная граничит с кухней, правая - наружная 1 м.
При выборе акустической отделки при будущем ремонте руководствовался общими рекомендациями, взятыми отсюда: http://soundmoderator.org/viewtopic.php?f=25&t=1509.
Планирую сделать следующую обработку:
Пол:
Звукоизоляция - Плиты Шумостоп в один слой.
Акустическая отделка - ковёр с длинным ворсом 2x2 кв. м между акустикой и диваном.
Потолок:
Звукоизоляция - плиты Шуманет.
Акустическая отделка - фрагмент потолка между акустикой и зоной прослушивания (квадрат 1.8x1.8 м2) - heradesign superfine 25мм без относа от плит Шуманет (т.к. с относом потолок падает ещё на 5 см).
Фронтальная стена:
Звукоизоляция - нет, но граничит с кухней.
Акустическая отделка - пока не определился.
Левая стена:
Звукоизоляция - нет, но стена и так толстая, 80 см (граничит с общим коридором).
Акустическая отделка - Плотная штора для отделения спальной зоны, за нею кровать.
Правая стена:
Звукоизоляция - нет, но стена является внешней, толщина 1 м.
Акустическая отделка - Плотные шторы у окна, за ними мягкий подоконник (декоративные подушки).
Тыловая стена:
Звукоизоляция - плиты Шуманет.
Акустическая отделка - позади от слушателя встроенный книжный шкаф шириной 1 м, выполняющий роль акустического диффузора.
Хотелось бы услышать, кто что думает, что следует доработать/поменять, и отдельно получить советы по следующим вопросам:
1) Насколько важно делать акустическую обработку фронтальной стены. Её отсутствие в моем случае сильно скажется на звуке?
2) При акустической отделке фронтальной стены в первую очередь нужно позаботиться о нижней её части (т.к. она является зоной первых отражений)?
3) Для фронтальной стены для звукопоглощения рассматриваю несколько вариантов, какой из них будет предпочтительнее для звука:
a. Облицовка плитами Heradesign без относа и без Шуманета (в целях экономии пространства), в комбинации с обычным ГКЛ. Какие в этом случае плиты выбрать и в каких пропорциях?
b. Плиты Heradesign с относом и Шуманетом, но не по всей стене, а в виде некой объемной конструкции в зоне между акустикой. Какие плиты в этом случае лучше использовать и в каких пропорциях?
c. Перфорированные панели Décor Acoustic совместно с плитами Шуманет без относа вдоль нижней части стены высотой 60 см.
d. Другие варианты, которые вы бы предложили.
4) Есть возможность скосить углы у фронтальной стены до 35 см. Стоит ли это делать без проведения предварительных акустических замеров и даст ли это ощутимый эффект? Если да, то насколько лучше скашивать?
5) Насколько ощутимый эффект будет от относа плит Heradesign от Шуманет на потолке? Стоит ли ради него жертвовать 5 см высоты помещения?
6) Стоит ли обработать дополнительным звукопоглощающим материалом стены в спальной зоне (которая находится за плотной шторой)?
Спасибо за внимание!
