просто комната для кино

Что такое реверберация, планировка домашних кинотеатров и студий звукозаписи, звукорассеивание и звукопоглощение, размещение акустических материалов в музыкальной комнате, дискотеке, конференц-зале, боулинге и т.д.

Модераторы: Виталий Роденков, Александр Фадеев, Антон Перетокин, Николай Канев, Андрей Нечаев, Александр Боганик, root, Наталья Ширгина

просто комната для кино

Сообщение bigmack » Вт июн 01, 2010 7:56 pm

Добра!
читал читал устал :)
понял, что с наскоку не разобраться и видимо не такой я и фанат хорошего звука.

будет обычная комната для просмотра кино
поскажите хотя бы поверхностно : совсем/не совсем фигня получится и можноли улучшить/исправить малой кровью
хотелось бы чтоб в итоге не получилась бубнилка которую и включать то не будешь.

входные данные
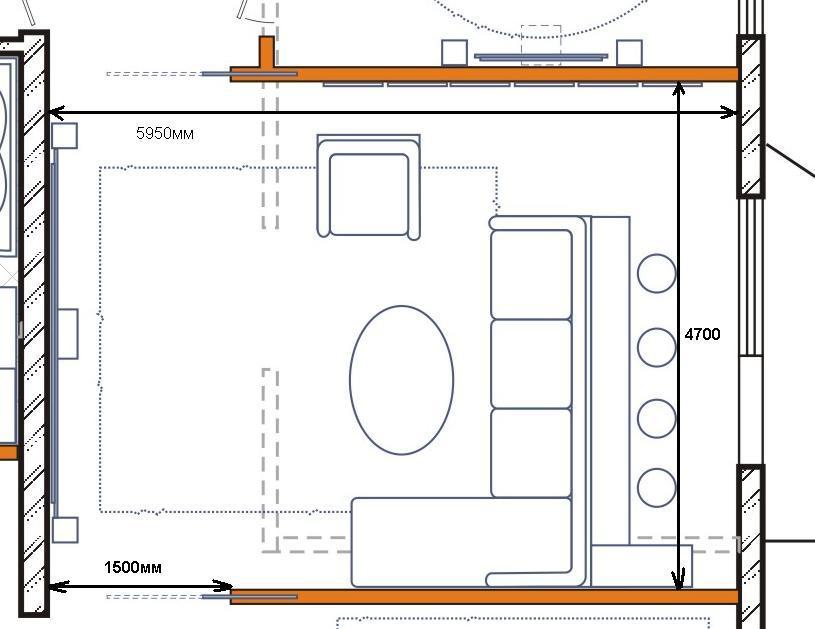
будет комната, проходная(вложение)
есть приблизительный дизайн отделки помещения (вложение)

стена за экраном несущая 16см (дом панельный)
боковые стены гипсокартон наполовину заполнены чемто звукоизолирующим (кстати чем? чтоб в соседних комнатах было потише ) , половина полая, так как по замыслу в неё уезжают двери.
задняя стена - окно выход на балкон
стены отделаны плиткой - в центре... низ и верх - панелями "под кирпич"
потолок - вагонка
пол - массив доски

соответственно вопросы :
1. можно ли из такого помещения получить ДК? смущают большие проемы по бокам

2. что с отделочным материалом - ненадоли заменить плитку на стенах или потолок на какойнибудь звукопоглощающий материал (акустичекие панели?)

3. может подскажете по компонентам (денег в 50-80) стерео пара на фронты и ресивер/усилок (увеличение числа колонок не предвидится, ну может только саб), направленность: кино 70% музыкальное видео (концерты) 30%
на данный момент есть старенькая ямаха 520 и пара jbl LX 2003 (но их видимо на выброс - в одной сгорел ВЧ )

PS: можете что-нибудь сказать о Bolzano Villetri Bellagio BG 780? уж больно дизайн нравится :)
Вложения
.JPG
план
.JPG (56.87 КБ) Просмотров: 12657
4__.JPG
4__.JPG (182.74 КБ) Просмотров: 12657
3__.JPG
3__.JPG (215.11 КБ) Просмотров: 12657
2__.JPG
2__.JPG (204.1 КБ) Просмотров: 12657
1__.JPG
1__.JPG (210.77 КБ) Просмотров: 12657
bigmack
 
Сообщения: 2
Зарегистрирован: Сб май 29, 2010 10:54 pm

Сообщение Александр Фадеев » Ср июн 02, 2010 10:47 am

Здравствуйте, bigmack.
1. В целом данная комната – неплохой вариант для домашнего кинотеатра, так как, не смотря на некоторые вопросы с дверными проемами, помещение обладает не самыми плохими пропорциями и относительно симметрично.
2. Для помещений домашних кинотеатра может стоять две задачи: звукоизоляция и акустика.
Задача звукоизоляции решается на этапе устройства ограждающих конструкций или путем устройства дополнительных конструкций. Постановка задачи такова, что не ясно необходима ли изоляция поверхностей пола и потолка. Что касается стен, то перегородку для обеспечения хороших результатов из гипсокартона стоит возвести согласно схемам по ссылке ниже:
http://www.acoustic.ru/ref_book/albom_s ... _pictures/
Однако стоит иметь в виду, что определяться звукоизоляция стены будет собственной звукоизоляцией дверного проема. Раздвижные двери высокой звукоизоляцией не обладают в силу не плотности примыкания по контуру. Кроме того, установка такой двери в полость перегородки, на мой взгляд, повлечет за собой определенные технологические трудности. Учитывая все вышесказанное, рекомендую рассмотреть вариант классических дверей с высоким значением индекса изоляции воздушного шума. Как правило, это массивные полотна с контуром(ами) уплотнения по периметру.
Обеспечение качественного звука (акустики) для помещения домашнего кинотеатра связано в первую очередь со снижением времени реверберации. Сделать это можно разместив звукопоглощающие облицовки на поверхностях стен и потолка. На мой взгляд, удачно вписаться в интерьер могут решения с использованием таких материалов как Decoracoustic, Heradesign а также поглощающие экраны драпированные тканью типа Cara:
http://www.acoustic.ru/productions/ceiling/
Во избежание отражения от оконной конструкции рекомендуется предусмотреть шторы, желательно из тяжелых тканей.
3. Что касается Bolzano Villetri Bellagio BG 780, не могу не согласиться на счет интересного дизайна. К сожалению, сказать о звуке ничего не могу, так как с данной аппаратурой дела не имел.
Вопрос по подбору аппаратуры лучше решать со специалистами по электроакустике. Хотелось бы отметить, что необходимость акустической отделки помещения возрастает с ростом качества аппаратуры. Так как очень часто именно помещение за счет наличия акустических дефектов ограничивает возможности аппаратуры и не дает ей «раскрыться».
Александр Фадеев
 
Сообщения: 1473
Зарегистрирован: Ср июн 25, 2008 1:26 pm
Город: Москва

Сообщение bigmack » Пт июн 04, 2010 4:07 am

Спасибо за ответ.
буду думать по поводу стен и дверей
bigmack
 
Сообщения: 2
Зарегистрирован: Сб май 29, 2010 10:54 pm

Сообщение Deep » Пн июн 21, 2010 12:54 am

У меня подобная ситуация.
В проходной комнате два прохода, они будут закрываться на случай прослушивания чего-либо. Хочу чтоб проходы были пошире. В этой же комнате уровень пола предполагается быть выше за счет его звукоизоляции.
Можно ли сделать раздвижные двери, чтоб через них проходило меньше звука?

То есть хочу получить звукоизолированную и подготовленную для ДК проходную комнату, закрывающуюся на случай его включения.
Стоит ли вообще морочиться с затеей звукоизоляции одной комнаты, если нет возможности звукоизолировать прилегающие кухню и корридор..
Deep
 
Сообщения: 3
Зарегистрирован: Пн июн 21, 2010 12:19 am

Сообщение Александр Фадеев » Пн июн 21, 2010 1:13 pm

Здравствуйте, Deep.
Звукоизоляция раздвижной двери определяется плотностью примыкания полотна к контуру дверного проема. В большинстве случаев хорошего примыкания добиться не удается. Поэтому я бы рекомендовал остановиться на двери классической конструкции (не раздвижной) с высоким значением индекса изоляции воздушного шума. Для увеличения эффективности можно устроить тамбур (пара дверей).
Стоит ли вообще морочиться с затеей звукоизоляции одной комнаты, если нет возможности звукоизолировать прилегающие кухню и корридор..

Звукоизоляция рассматриваемого помещения решит задачу снижения уровней звука в кухне и коридоре от оборудования домашнего кинотеатра. Или Вы имеете в виду изоляцию не только от этого источника, а, например, от соседей?
Александр Фадеев
 
Сообщения: 1473
Зарегистрирован: Ср июн 25, 2008 1:26 pm
Город: Москва

Сообщение Deep » Пн июн 21, 2010 2:25 pm

Александр Фадеев писал(а): Или Вы имеете в виду изоляцию не только от этого источника, а, например, от соседей?

Меня больше интересует звукоизоляция соседей от меня.
Deep
 
Сообщения: 3
Зарегистрирован: Пн июн 21, 2010 12:19 am

Сообщение Александр Фадеев » Вт июн 22, 2010 4:42 pm

Если речь идет об изоляции только от звуков кинотеатра – то изолировать нужно только его. В изоляции остальных помещений в этом случае смысла нет.
Если же идет речь об изоляции квартиры в целом, то необходимо применять звукоизоляционные конструкции для поверхностей пола, стен, потолков. Для того чтобы подобрать наиболее удачные решения для Вашего случая неплохо было бы посмотреть планировку, также не лишней была бы информация о здании и из чего выполнены ограждающие конструкции и в каком они состоянии в настоящий момент. Как правило, подобные задачи решаются устройством типовых звукоизоляционных конструкций, ознакомиться с которыми можно в разделе «технические решения»:
http://www.acoustic.ru/ref_book/albom_solutions/
Александр Фадеев
 
Сообщения: 1473
Зарегистрирован: Ср июн 25, 2008 1:26 pm
Город: Москва

Сообщение Deep » Вс июн 27, 2010 10:45 pm

А что получится, если использовать раздвижные двери (их звукопроницаемость и щели продумываются) и тяжелые шторы?
Все же вариант лучше, но насколько?

Это все для звукоизоляции прохода комнаты с ДК, чтоб снизить шум от комнаты для соседей.
Deep
 
Сообщения: 3
Зарегистрирован: Пн июн 21, 2010 12:19 am

Сообщение Александр Фадеев » Пн июн 28, 2010 4:59 pm

Строго говоря, для количественной оценки эффективности рассматриваемого решения необходимо проводить соответствующие измерения для конкретных марок дверей и видов тканей. Но в большинстве случаев картина в целом будет определяться плотностью прикрытия раздвижной двери. Тканевая штора будет иметь лишь косметический характер, и серьезно на изоляцию не повлияет. Единственный плюс такого решения - это снижение отражений от дверных полотен для высокочастотного спектра.
Александр Фадеев
 
Сообщения: 1473
Зарегистрирован: Ср июн 25, 2008 1:26 pm
Город: Москва


Вернуться в Акустика помещений

Кто сейчас на конференции

Сейчас этот форум просматривают: нет зарегистрированных пользователей и гости: 37