Что такое реверберация, планировка домашних кинотеатров и студий звукозаписи, звукорассеивание и звукопоглощение, размещение акустических материалов в музыкальной комнате, дискотеке, конференц-зале, боулинге и т.д.
Модераторы: Виталий Роденков, Александр Фадеев, Антон Перетокин, Николай Канев, Андрей Нечаев, Александр Боганик, root, Наталья Ширгина
Frant » Вс окт 24, 2010 11:38 am
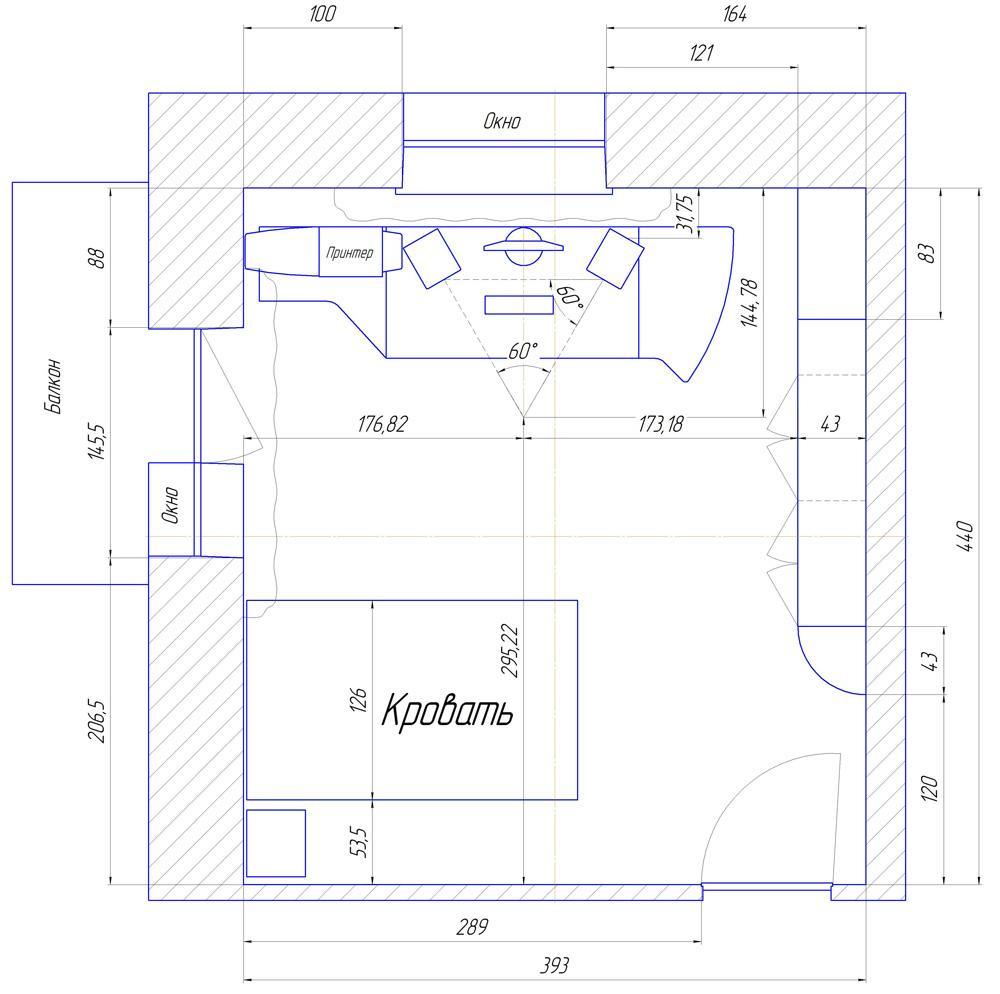
Здравствуйте. Имеется жилая комната 4,4м на 3,9м на 2,4м.
Имеются поглатители:
Басовые ловушки:
http://vicoustic.com.ua/index.php?page= ... nd_Premium
4шт.
СЧ/ВЧ:
http://vicoustic.com.ua/index.php?page= ... nd_Premium
8шт. панели 60см на 60см
Задача: оптимизировать комнату для сведения.
Я понимаю что этого никак не достаточно для более менее правильной акустики комнаты, но всё же хочется подглушить комнату.
Интересуют советы как
рациональнее разместить данные ловушки (4 бассовые и 8 СЧ/НЧ) чтобы достичь максимально эффекта от них??
Заранее большое спасибо.
- Вложения
-

- Передняя стена 2
- Передняя стена 3.jpg (186.9 КБ) Просмотров: 6232
-

- Дверь на задней стене
- Дверь на задней стене.jpg (159.71 КБ) Просмотров: 6232
-

- Левая стена
- Левая стена 1.jpg (196.95 КБ) Просмотров: 6232
-

- Правая стена
- Правая стена 1.jpg (222.56 КБ) Просмотров: 6232
-

- Передняя стена
- Передняя стена 1.jpg (202.3 КБ) Просмотров: 6232
-

- План передней стены
- План передней стены.jpg (241.1 КБ) Просмотров: 6232
-

- План правой стены
- План правой стены.jpg (105.51 КБ) Просмотров: 6232
-

- План левой стены
- План левой стены.jpg (210.4 КБ) Просмотров: 6232
-

- План сверху
- План сверху.jpg (207.48 КБ) Просмотров: 6232
-
Frant
-
- Сообщения: 1
- Зарегистрирован: Вс апр 26, 2009 3:20 pm
- Город: красноярск
-
Виталий Роденков » Вт окт 26, 2010 3:27 pm
Добрый день, Frant!
Если речь идет только о размещении предлагаемых поглотителей, то можно руководствоваться следующими соображениями:
1. Штучные НЧ поглотители рекомендуется размещать в углах помещения, т.о. они внесут максимальное поглощение;
2. Поглотители необходимо разместить симметрично относительно оси прослушивания;
3. По месту следует найти оптимальное положение стола и АС для максимальной равномерности на низких частотах.
Можно сделать мобильную ширму из поглотителей и устанавливать её за спиной вблизи рабочего места, что бы снизить влияние первых отражений от тыловой стены. Либо, поместить часть поглотителей на тыловой стене, хотя их не так уж много.
-
Виталий Роденков
-
- Сообщения: 1139
- Зарегистрирован: Чт май 03, 2007 11:02 am
- Город: Москва
Вернуться в Акустика помещений
Кто сейчас на конференции
Сейчас этот форум просматривают: нет зарегистрированных пользователей и гости: 35