"Комната в комнате".

Что такое реверберация, планировка домашних кинотеатров и студий звукозаписи, звукорассеивание и звукопоглощение, размещение акустических материалов в музыкальной комнате, дискотеке, конференц-зале, боулинге и т.д.

Модераторы: Виталий Роденков, Александр Фадеев, Антон Перетокин, Николай Канев, Андрей Нечаев, Александр Боганик, root, Наталья Ширгина

"Комната в комнате".

Сообщение b-mic » Вс окт 10, 2010 8:21 am

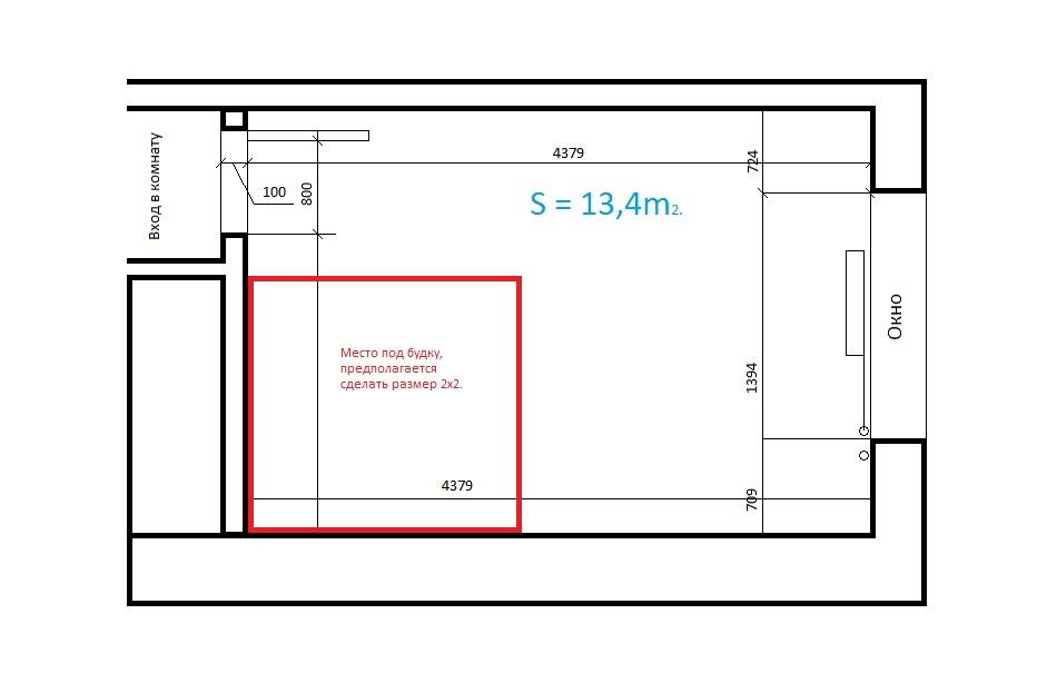
Здравствуйте, есть необходимость построить в комнате "будку" для записи голоса (делаем хип-хоп). Цель - хорошая домашняя студия.

Ниже прилагаю проект комнаты и текст из соседней темы (высота потолка - 2554 мм).

В рабочей комнате и комнате для записи устраивается полная звукоизоляция по схеме «комната в комнате», что необходимо для снижения косвенной передачи шума из рассматриваемых помещений:

1. Дополнительная звукоизоляция пола – устройство конструкции «плавающего» пола, которая представляет собой бетонную стяжку из пескобетона М300 толщиной 70 мм поверх 2-х слоев плит Шумостоп-С2 (К2). Общая толщина конструкции 110мм;

2. Дополнительная звукоизоляция потолка - рекомендуется применить конструкцию каркасного потолка из ГВЛВ10мм + ГКЛ12,5мм на подвесах Виброфлекс-1/30А с заполнением полости плитами Шуманет-БМ х 2 слоя. Расход виброизолирующих подвесов Виброфлекс-1/30А составляет 2,5 – 3 шт./м2. Общая толщина конструкции 140мм. Еще один вариант панельная система ЗИПС-Синема общей толщиной 133мм.

3. Дополнительная звукоизоляция стен - необходимо применить каркасную облицовку из 2хГВЛВ10мм + ГКЛ12,5мм на независимом каркасе из профилей ПС100/50 с зазором от стены 10 мм. Общая толщина конструкции 150мм. Во внутреннюю полость конструкции укладывается материал Шуманет-БМ х 2 слоя.

4. Устройство звукоизолирующего тамбура между рабочей комнатой и комнатой для записи путем установки двух звукоизолирующих дверей (массивные двери с двойным контуром уплотнения). Причем двери устанавливаются в независимые элементы многослойной перегородки, т.е. в звукоизолирующие облицовки стен. Как вариант рассмотрите двери ALAVUS, сравнимо не дорогие.

Особое внимание требуется уделить исполнению конструкций, важно исполнить массивные герметичные облицовки без жестких связей с существующими стенами и потолком.


После звукоизоляции в таких помещениях необходимо выполнять мероприятия по коррекции акустики с целью обеспечения качества звучания и записи, в соответствии со специальными требованиями.
Типовым, довольно бюджетным вариантом акустической отделки помещения является следующий перечень мероприятий:

1. Устройство угловых звукопоглотителей для снижения гулкости в области низких частот в четырех углах каждого проектируемого помещения. Угол заполняется звукопоглощающим материалом Шуманет-СК и драпируется тканью с промежуточным слоем синтепона.

2. Устройство звукопоглощающих облицовок стен из плит HERADESIGN Superfine 600х1200х15мм, которые монтируются на каркас из бруса или металлических профилей КНАУФ с заполнением внутренней полости плитами Шуманет-БМ толщиной 50 мм. Общая толщина конструкции 65 мм.

3. Устройство звукопоглощающего потолка из перфорированных плит гипсокартона ППГЗ 600х600мм, которые укладываются в растровую подвесную систему. Толщина конструкции 150 мм.

4. В качестве финишного покрытия пола можно применить ковровое покрытие с длиной ворса около 6-10 мм.


Вопросы буду задавать глупые, т.к. опыта в "строительстве" не имею :wink:

1. Подходит ли мне эта схема (цель см. выше)? Или нужно что-то изменить?
2. Легко ли заменяются материалы? (Живу во Владивостоке, не уверен, что смогу все достать).
3. Убьется ли паркет и натяжной потолок после построения этого чуда?
4. Сколько будет стоить конечный вариант с учетом материалов и размера "будки"? (Точную цену не прошу, считать долго, примерная сойдет).

Вопросы будут добавляться по мере их придумывания.
Вложения
broom2.jpg
broom2.jpg (53.9 КБ) Просмотров: 7914
b-mic
 
Сообщения: 2
Зарегистрирован: Вс окт 10, 2010 7:01 am

Сообщение Александр Фадеев » Пн окт 11, 2010 10:52 am

Здравствуйте, b-mic.
1. Что касается звукоизоляции – все решения применимы для Вашего случая. Я бы добавил ЗИПС-Пол в качестве возможного решения по полу.
Что касается акустической отделки, то для вокальной комнаты будет излишним делать угловые низкочастотные поглотители. Достаточно сделать звукопоглощающие облицовки из материалов типа Mappysil, Heradesign, Ecophon на поверхностях стен и потолка. На поверхности пола разместить ковролин.
2. По поводу приобретения материалов Вы можете обратиться к официальному дистрибьютору:
ООО "ДЖАЗ"
Адрес: г.Владивосток, ул.Светланская, 16/25
Тел.: (4232) 62-04-67, факс 41-25-03, магазин 41-11-51
e-mail: 500000bg@list.ru
3. Я так понимаю, что вопрос связан с тем, что сейчас в рассматриваемой комнате уложен паркет, а на потолке – натяжной потолок. В данном случае в зависимости от выбора основания вокальной кабины можно рассмотреть варианты с демонтажными работами («плавающая» стяжка) и их избежанием (ЗИПС-Пол). Целостность полотна натяжного потолка будет нарушена из-за крепления звукоизоляционной конструкции потолка к перекрытию.
4. С вопросом о стоимости материалов и возможности проведения работ и их стоимости во Владивостоке стоит обратиться к официальному дистрибьютору.
Александр Фадеев
 
Сообщения: 1473
Зарегистрирован: Ср июн 25, 2008 1:26 pm
Город: Москва

Сообщение b-mic » Пн окт 11, 2010 2:49 pm

Вопрос насчет размера "будки". Еще раз переосмыслил и 2х2 показалось многовато, один майк, один мс, остается довольно много свободного места. Но думаю размер тоже влияет на звук, что скажете по этому поводу?
b-mic
 
Сообщения: 2
Зарегистрирован: Вс окт 10, 2010 7:01 am

Сообщение Александр Фадеев » Пн окт 11, 2010 4:58 pm

Главное хорошо заглушить вокальную кабину. В этом случае влияние изменения геометрических размеров не критично. Поэтому ориентироваться можно на минимальное достаточное для записи пространство. Однако стоит учитывать, что при уменьшении внутреннего объема бокса стоит уделить внимание на обеспечение доступа свежего воздуха в такую кабину.
Александр Фадеев
 
Сообщения: 1473
Зарегистрирован: Ср июн 25, 2008 1:26 pm
Город: Москва


Вернуться в Акустика помещений

Кто сейчас на конференции

Сейчас этот форум просматривают: нет зарегистрированных пользователей и гости: 19

cron