Проблема со звуком. Домашняя студия.

Что такое реверберация, планировка домашних кинотеатров и студий звукозаписи, звукорассеивание и звукопоглощение, размещение акустических материалов в музыкальной комнате, дискотеке, конференц-зале, боулинге и т.д.

Модераторы: Виталий Роденков, Александр Фадеев, Антон Перетокин, Николай Канев, Андрей Нечаев, Александр Боганик, root, Наталья Ширгина

Проблема со звуком. Домашняя студия.

Сообщение sergeyarl » Вс июн 06, 2010 7:50 pm

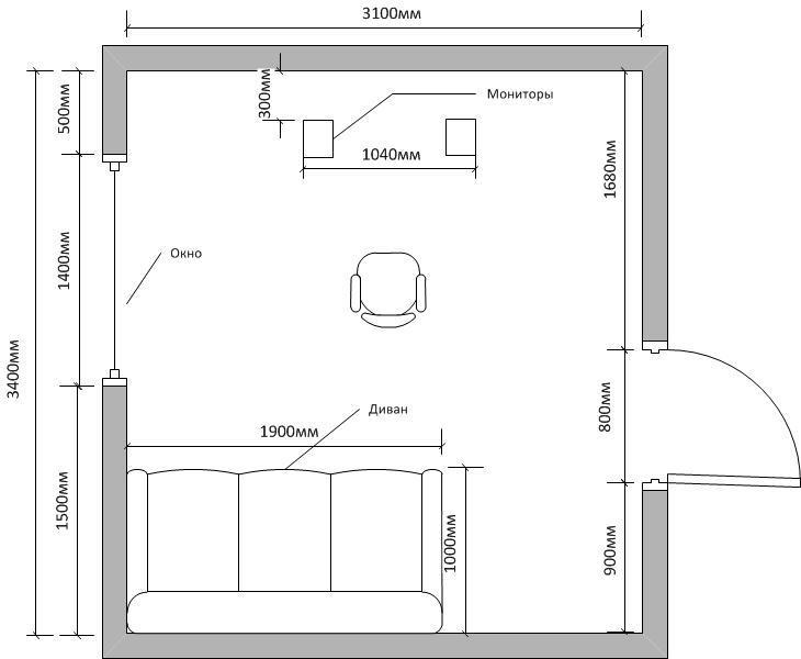
Раньше в качестве контроля использовал мониторы KRK RP5 и особо не замечал проблем. С покупкой KRK VXT6 начала гудеть комната. Более того, работать более получаса стало практически невозможно даже на небольшой громкости :( Реально вянут уши. Если повернуться к мониторам боком то слышен просто невероятный гул на басах отражающийся от стенок (на слух 40-50 гц). План комнаты прилагаю (3.1х3.4; высота 2.6).
Сейчас читаю форум - изучаю способы отделки помещения.
Подскажите пожалуйста - Возможно ли будет заглушить нормально такую комнату ? Сейчас она абсолютно не обработаная. Дайте пожалуйста какой-нибудь совет :)
Заранее спасибо!
Вложения
.jpg
.jpg (35.54 КБ) Просмотров: 7302
sergeyarl
 
Сообщения: 2
Зарегистрирован: Вс июн 06, 2010 7:47 pm

Сообщение Александр Фадеев » Пн июн 07, 2010 1:59 pm

Здравствуйте, sergeyarl.
Не думаю, что проблема только в диапазоне 40-50 Гц. Скорее всего, дело в высоком времени реверберации помещения во всем частотном диапазоне. Снизить его можно путем устройства звукопоглощающих облицовок. С возможными вариантами материалов Вы можете познакомиться по ссылке ниже:
http://www.acoustic.ru/productions/ceiling/
Чтобы подобрать материалы и их площади для получения достойной акустики делается акустический расчет, по результатам которого определяются поглощающие конструкции, их площади, место расположения в комнате.
Отдельно хотелось бы сказать несколько слов о поглощении в области низких частот. Данная задача, как правило, решается размещением в помещении звукопоглотителей поглотителей панельного типа. Если сейчас чувствуется проблема именно с низкими частотами, рекомендую обратить на это внимание.
Александр Фадеев
 
Сообщения: 1473
Зарегистрирован: Ср июн 25, 2008 1:26 pm
Город: Москва

Сообщение makus » Пн июн 07, 2010 1:59 pm

присоединясь к вопросу, у самого подобная ситуация
makus
 
Сообщения: 1
Зарегистрирован: Пн июн 07, 2010 1:58 pm

Сообщение sergeyarl » Пн июн 07, 2010 10:30 pm

Александр Фадеев писал(а):Здравствуйте, sergeyarl.
Не думаю, что проблема только в диапазоне 40-50 Гц. Скорее всего, дело в высоком времени реверберации помещения во всем частотном диапазоне. Снизить его можно путем устройства звукопоглощающих облицовок. С возможными вариантами материалов Вы можете познакомиться по ссылке ниже:
http://www.acoustic.ru/productions/ceiling/
Чтобы подобрать материалы и их площади для получения достойной акустики делается акустический расчет, по результатам которого определяются поглощающие конструкции, их площади, место расположения в комнате.
Отдельно хотелось бы сказать несколько слов о поглощении в области низких частот. Данная задача, как правило, решается размещением в помещении звукопоглотителей поглотителей панельного типа. Если сейчас чувствуется проблема именно с низкими частотами, рекомендую обратить на это внимание.


Александр, спасибо за ответ.
Насколько я понимаю Вы предлагаете услуги по подбору материалов и акустическому расчету. Я правильно понял? Если так, то хотелось бы узнать цены на подобные услуги.
Так же хотел упомянуть, что это жилая комната и крайне хотелось бы избежать таких материалов, как стекловолокно и похожих. Т.е. хотелось бы использовать экологичные, если так можно сказать материалы :)

Так же я слышал, что облицовывать звукопоглощающими материалами можно не все помещения, а т.с. точечно. Я прав?

P.S. я из Петербурга, т.е. наверное стоит подъехать к Вам в офис или вызвать специалиста?
sergeyarl
 
Сообщения: 2
Зарегистрирован: Вс июн 06, 2010 7:47 pm

Сообщение Александр Фадеев » Вт июн 08, 2010 9:56 am

Для начала я бы рекомендовал посетить офис в Санкт-Петербурге:
Адрес: 197342, г. Санкт-Петербург, Белоостровская улица, дом 22
Бизнес-центр "Черная Речка", офис 415А
Тел./факс: (812)-644-43-40, (905)-225-08-80
Режим работы: понедельник - пятница, с 9-30 до 18-30 (без перерыва на обед)

В офисе Вы сможете получить полноценную инженерную консультацию (в формате общения на форуме сделать это несколько проблематично) и ознакомиться с возможными решениями по коррекции акустики комнаты и материалами для их реализации, обсудить финансовые вопросы. Кроме того, если я правильно понимаю, комната будет использоваться и как жилое помещение, а это вызывает некоторые ограничения по подбору материалов в акустической отделке и требует внимание к особенностям помещения. Все это лучше обсуждать вживую.
Александр Фадеев
 
Сообщения: 1473
Зарегистрирован: Ср июн 25, 2008 1:26 pm
Город: Москва


Вернуться в Акустика помещений

Кто сейчас на конференции

Сейчас этот форум просматривают: нет зарегистрированных пользователей и гости: 25

cron