Я - начинающий продюсер


+
Живу я в Баку,многого из того,что нужно будет,я тут найти не смогу,но это ничего. Буду заказывать. Кстати насчет тяжелой занавеси на окна уже в поисках...
Буду благодарен помощи, надеюсь на Вас. Жду отзывов и вопросов =)
Спасибо.
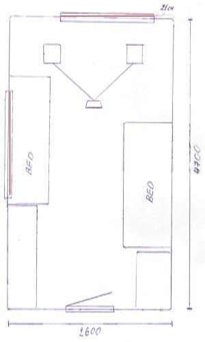
фото :
http://s58.radikal.ru/i159/1004/3b/5dc5b7cd8dbd.jpg
http://s52.radikal.ru/i135/1004/a6/21d610a071c8.jpg
http://s41.radikal.ru/i094/1004/33/ab5c4fa7b9b2.jpg
http://s46.radikal.ru/i112/1004/46/b978cab05d3e.jpg
http://i023.radikal.ru/1004/c5/d7cb5e32edb5.jpg
http://s005.radikal.ru/i209/1004/cf/76668392a4b7.jpg
http://i030.radikal.ru/1004/68/3cd200b985e0.jpg
http://i068.radikal.ru/1004/79/978763d61697.jpg
http://i051.radikal.ru/1004/2e/502dee99c8f3.jpg
ЗЫ - если чертеж нужно переделать,я готов.