Здраствуйте, уважаемые. Подскажите по сабжу.
Nad 535, Nad 755, Polk audio Rti A7(стоят на тротуарной плитке), кабели tasker 2*4мм.
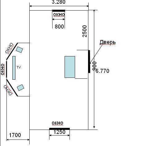
Комната 26 м. выглядит как прямоугольник с эркером посередине. Колонки стоят в эркере, по бокам от tv. Ходил искал бас по комнате, и вроде нашел его между колонками, а также в углах.
p.s. частный дом по канадской технологии(стены и пол осп-пенопласт-осп), лежит паркетная доска, но как раз напротив tv небольшая неровность пола и доска гуляет, аж видно когда по ней идешь.
Шторы тонкие, какие нашли, скоро плотные повесим. Потолок подвесной, из 1 слоя гкл с мин. ватой. На стенах гкл и краска. Ковра нет.
