Нужна помощь специалистов

Что такое реверберация, планировка домашних кинотеатров и студий звукозаписи, звукорассеивание и звукопоглощение, размещение акустических материалов в музыкальной комнате, дискотеке, конференц-зале, боулинге и т.д.

Модераторы: Виталий Роденков, Александр Фадеев, Антон Перетокин, Николай Канев, Андрей Нечаев, Александр Боганик, root, Наталья Ширгина

Нужна помощь специалистов

Сообщение Sem_dj » Пн янв 04, 2010 3:01 am

Доброго времени суток, очень нужен совет Многоуважаемых профи по акустической и звукопоглощающей отделки домашней студии . Имеется чердачное помещение 4 на 4 метра и высота (с наклоном) 205см на уменьшение 165 см, двери нет попадаю туда через люк в полу, Есть окно 90 см на 140 см, высота его от пола 80 см. Ниже прикладываю схемы. все стены не бетонные и не кирпичные как вы и видите на схемах. Задача у меня такая: Занимаюсь электронной музыкой, нужно сводить и записывать вокал. Так вот, хочу для записи вокала построить кабинку, и соответственно ту площадь которая останется использовать для контрольной комнаты. Посоветуйте пожалуйста как лучше все разместить кабинку и остальную аппаратуру, и сделать звукоизоляцию, а потом акустическое оформление моего помещения. На форуме очень много подобных тем и логично бы было почерпать информацию из уже существующих примеров, но думаю у меня немного другая ситуация, у меня не бетонные стены, и в помещении достаточно шумно, поэтому хотелось бы получить драгоценные советы от знающих людей именно по моему помещению! Огромное всем откликнувшимся, и ради Бога извините, если не очень грамотно сформулировал свой вопрос.
Вложения
0085.jpg
0085.jpg (137.35 КБ) Просмотров: 11812
0084.jpg
0084.jpg (131.07 КБ) Просмотров: 11812
0083.jpg
0083.jpg (116.35 КБ) Просмотров: 11812
0082.jpg
0082.jpg (128.22 КБ) Просмотров: 11812
0081.jpg
0081.jpg (155.19 КБ) Просмотров: 11812
0080.jpg
0080.jpg (131.73 КБ) Просмотров: 11812
.jpg
Потолок
.jpg (115.1 КБ) Просмотров: 11812
.jpg
передняя стена с окном
.jpg (85.44 КБ) Просмотров: 11812
.jpg
Вот это вид сбоку, чтобы отразить наклон потолка
.jpg (66.18 КБ) Просмотров: 11812
.jpg
Это общий план помещения
.jpg (36.21 КБ) Просмотров: 11812
Sem_dj
 
Сообщения: 5
Зарегистрирован: Вс янв 03, 2010 4:01 am
Город: г. Сочи

Re: Нужна помощь специалистов

Сообщение Николай Канев » Пт янв 15, 2010 6:04 pm

Sem_dj писал(а):Доброго времени суток,
...Посоветуйте пожалуйста как лучше все разместить кабинку и остальную аппаратуру, и сделать звукоизоляцию, а потом акустическое оформление моего помещения.
... у меня не бетонные стены, и в помещении достаточно шумно, .


Добрый день,
из вопроса все-таки осталось непонятным нужна ли в помещении звукоизоляция от внешних шумов (или может звук из студии будет проникать в примыкающие помещения и мешать там).
Это первое с чего нужно начать.
Кроме того, чем бетонные стены отличаются от кирпичных? И то, и другое непригодно в качестве финишной отделки, их нужно будет акустически отделавать, даже если не понадобится звукоизоляция.
И последний вопрос: что является источником шума?
Николай Канев
 
Сообщения: 878
Зарегистрирован: Ср ноя 08, 2006 9:57 am

Сообщение Sem_dj » Вс янв 17, 2010 2:09 pm

Добрый день Николай, спасибо за ответ!
1) Дело в том, что соседи существуют только снизу, но с соседями проблем не будет, все остальные стороны пока ни кому не мешают и в ближайшие лет 10 мешать не будут. Так как все стены не имеют ни бетонной, ни кирпичной основы, в помещении достаточно шумно(на сколько шумно, пока сказать не могу, так как измерения не проводил), но я не знаю стоит ли только из-за проникающего шума делать звукоизоляцию(шумоизоляцию) помещения, или сделать лишь только акустическое оформление.
2) Стены не бетонные и не кирпичные, посмотрите пожалуйста на приложенные схемы.
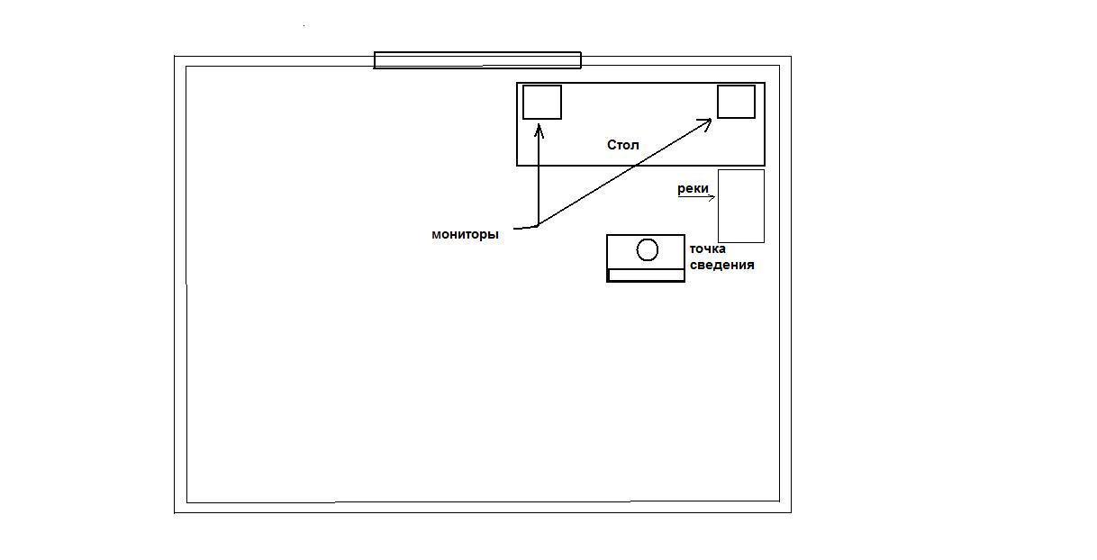
3) Однозначно Нужно будет акустически оформить помещение, источником шума будут только мониторы KRK6(запись,сведение электронной музыки). Хочу еще для записи вокала сделать кабинку.

Прикладываю схему желаемого размещения аппаратуры, но без размеров, хотелось бы чтобы вы прикинули что и куда лучше поставить!
Вложения
.jpg
.jpg (30.38 КБ) Просмотров: 11670
Sem_dj
 
Сообщения: 5
Зарегистрирован: Вс янв 03, 2010 4:01 am
Город: г. Сочи

Сообщение Николай Канев » Пн янв 18, 2010 12:03 pm

Если честно, мне не до конца понятно, что изображено на схемах.... :shock:
Тем не менее, я надеюсь, что вы не планируете использовать пластиковые панели, существующие сейчас на стенах, для акустической отделки?

Вопрос в том будете ли Вы их демонтировать или акустические материалы полагаете располагать поверх них?

Все-таки вопрос звукоизоляции (делать ее или нет) нужно решить в первую очередь, поскольку именно с нее нужно начинать весь ремонт. Если уровень шума сейчас высокий, судя по вашим ощущениям, то в последующем он может сильно мешать работе.
Николай Канев
 
Сообщения: 878
Зарегистрирован: Ср ноя 08, 2006 9:57 am

Сообщение Sem_dj » Пн янв 18, 2010 3:33 pm

Николай Канев писал(а):Если честно, мне не до конца понятно, что изображено на схемах.... :shock:
Тем не менее, я надеюсь, что вы не планируете использовать пластиковые панели, существующие сейчас на стенах, для акустической отделки?

Вопрос в том будете ли Вы их демонтировать или акустические материалы полагаете располагать поверх них?

Все-таки вопрос звукоизоляции (делать ее или нет) нужно решить в первую очередь, поскольку именно с нее нужно начинать весь ремонт. Если уровень шума сейчас высокий, судя по вашим ощущениям, то в последующем он может сильно мешать работе.


1) Решил делать звукоизоляцию, есть возможность все стены кроме передней дорабатывать с наружней стороны, то есть не нанося ущерба размеру помещению, но будет ли такая звукоизоляция эффективна???.
2)По поводу пластиковых панелей, конечно не хотелось бы их демонтировать, но если очень нужно то прийдется их демонтировать.
3) Что касается моих схем))), да может быть не совсем понятно на них, но одно там точно понятно размеры помещения и мой скошенный потолок. Состав стен: (боковые)- внутр. сторона пластик+ в середине минвата 100 мм.+ фанера! (задняя стена)-аналогична боковым! (Передняя стена)-внутр.сторона пластик+минвата 100 мм+ сайдинг! Вот такое у меня помещение!
Sem_dj
 
Сообщения: 5
Зарегистрирован: Вс янв 03, 2010 4:01 am
Город: г. Сочи

Сообщение Николай Канев » Пн янв 25, 2010 6:09 pm

Добрый день, итак,

1. Звукоизоляция.
...в помещении достаточно шумно(на сколько шумно, пока сказать не могу, так как измерения не проводил)...

Если источник мешающего шума расположен внутри здания, то со стороны студийного помещения требуется по крайней мере звукоизоляция пола и стен. Учитывая, что строение деревянное, то, видимо, технологии плавающих звукоизолирующих полов неприменимы. Остается вариант звукоизолирующего пола по лагам. Примерная схема выложена ниже.

ИзображениеHost for your pictures

Важен вопрос звукоизоляции стен. Существующие пластиковые панели с этой функцией не справляются. Необходимо монтировать облицовки на независимых от существующих стен каркасах из гипсокартонных/гипсоволокнистых листов. Поскольку требуемые облицовки независимы от существующих, то наличие пластика за ними ни на что не влияет. Если хотите сэкономить пространство, то пластиковую обшивку можно демонтировать.

Что касается шума с улицы, то обычно он идет через окно, поэтому меняете стеклопакеты. При этом нужно выбрать стеклопакеты с максимальными звукоизолирующими свойствами. При монтаже стеклопакета необходимо обеспечить герметичность оконного проема (чтобы шум не шел через щели).

2. Кабина. Стены кабины можно выполнить их двухкаркасной перегородки. Схема 1.2.2. из альбома технических решений http://www.acoustic.ru/e_decisions/albo ... _pictures/

Дверь обязательно установить звукоизолирующую с индексом изоляции воздушного шума не менее 30 дБ.

3. Акустическая отделка.

Наиболее простой вариант отделки – звукопоглощающая плита Ecophon Tal-H, ее можно расположить на потолке обоих помещений, а также на стенах вокальной.
Что касается стен микшерской более практичными являются панели Heradesign – их можно покрасить в любой цвет и они ударопрочные.

P.S. На самом деле подобные детальные вопросы удобнее обсуждать очно с инженером –акустиком. В таком режиме за 10 мин можно понять всю ситуацию и задать уточняющие вопросы проясняющие ситуацию и порекомендавить более точное и подходящее для каждого конкретного случая решение.
Николай Канев
 
Сообщения: 878
Зарегистрирован: Ср ноя 08, 2006 9:57 am

Сообщение Sem_dj » Вс янв 31, 2010 11:36 pm

Добрый день Николай, спасибо за ответы и советы, недавно родился сын, и на время все вопросы с помещением отошли на задний план, все внимание пока маленькому человечку! Как только найду время заняться помещением, сразу отпишусь о проблемах, которые наверняка возникнут, а пока ухожу на дно, думаю на месяц! Еще раз спасибо за внимание, с Уважением Сергей!
Sem_dj
 
Сообщения: 5
Зарегистрирован: Вс янв 03, 2010 4:01 am
Город: г. Сочи

Сообщение Николай Канев » Пн фев 01, 2010 9:44 am

Сергей, поздравляю от всей души!
Растите здоровыми! :D

А как появятся по акустике - сразу к нам :lol:
Николай Канев
 
Сообщения: 878
Зарегистрирован: Ср ноя 08, 2006 9:57 am

Сообщение Sem_dj » Вт фев 02, 2010 11:22 pm

спасибо Николай за поздравления, как только освобожусь по времени, так сразу к вам! :D
Sem_dj
 
Сообщения: 5
Зарегистрирован: Вс янв 03, 2010 4:01 am
Город: г. Сочи


Вернуться в Акустика помещений

Кто сейчас на конференции

Сейчас этот форум просматривают: нет зарегистрированных пользователей и гости: 30

cron