Что такое "плавающий пол", как правильно возвести звукоизоляционную перегородку, как снизить уровень шума в боулинге, фитнесс-зале, офисе, как звукоизолировать вентилятор, насос, домашний кинотеатр и т.д.
Модераторы: Виталий Роденков, Александр Фадеев, Антон Перетокин, Николай Канев, Андрей Нечаев, Александр Боганик, root, Наталья Ширгина
alexonio » Пт мар 20, 2009 8:18 am
Здравствуйте.
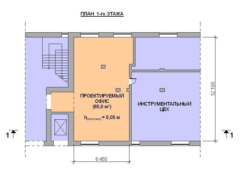
Существует 2-х этажное промышленное здание (цех начала 20 века). Необходимо запроектировать офисные помещения на 1-этаже (85 м2, высота потолка h=5,05м, стены кирпичные, перекрытия ж/б). В соседнем помещении и на 2-м этаже работают металлообрабатывающие станки. Подскажите пожалуйста, как и какими материалами осуществить мероприятия по звукоизоляции. Насколько эффективны в данном случае такие меры (как шум влияет на работоспособность людей, работающих в офисе). Хочется, чтобы офис работал в максимальной тишине.
Заранее спасибо.
- Вложения
-

- Разрез 1-1
- RAZREZ_01.jpg (45.6 КБ) Просмотров: 2576
-

- План 1-го этажа
- PLAN_01.jpg (41.19 КБ) Просмотров: 2576
-
alexonio
-
- Сообщения: 1
- Зарегистрирован: Пт мар 20, 2009 7:55 am
Андрей Смирнов » Пт мар 20, 2009 10:51 am
Для определения объема звукоизоляционных мероприятий необходимо проведение акустического обследования производственных и реконструируемых помещений и измерения уровней шума и вибрации.
Только после этого можно сказать что-то определенное.
-
Андрей Смирнов
-
- Сообщения: 1166
- Зарегистрирован: Вт авг 29, 2006 1:24 pm
- Город: Украина, Киев
-
Вернуться в Звукоизоляция
Кто сейчас на конференции
Сейчас этот форум просматривают: нет зарегистрированных пользователей и гости: 49