Вариант звукоиоляции пола и стен

Что такое "плавающий пол", как правильно возвести звукоизоляционную перегородку, как снизить уровень шума в боулинге, фитнесс-зале, офисе, как звукоизолировать вентилятор, насос, домашний кинотеатр и т.д.

Модераторы: Виталий Роденков, Александр Фадеев, Антон Перетокин, Николай Канев, Андрей Нечаев, Александр Боганик, root, Наталья Ширгина

Вариант звукоиоляции пола и стен

Сообщение Serj_82 » Чт июл 16, 2020 4:59 pm

Добрый день.

Не так давно въехал в новостройку в одном из "человейников" в Мурино (пригород Санкт-Петербурга).
Слышимость крайне высокая, прожив всю жизнь в панельной пятиэтажке 1985 года постройки, я такого не ожидал...
Звук распространяется со всех сторон, при этом можно даже слышать соседей через два этажа.
Приложив ухо к стенам непонятно откуда идет звук. То есть если шумит сосед снизу, то может вполне показаться что шумит сосед слева.
В квартире две вентшахты из бетона. Шумящих через два этажа слышно как раз из вентшахты. Но основная проблема - соседи снизу.

Итак, проблема: шум от соседей снизу, а так же иногда может быть от соседей сверху через пару этажей.

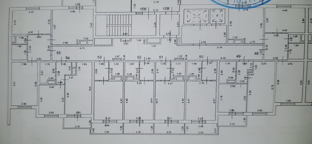
План помещения прилагаю.

20200607_225225.jpg
20200607_225225.jpg (224.13 КБ) Просмотров: 5760

20200607_225401.jpg
20200607_225401.jpg (232.99 КБ) Просмотров: 5760



Предполагается шумоизоляция только спальни, т.к. всю квартиру точно не потяну, да и уменьшать итак маленькую гостиную-кухню не хотелось бы...

Характер источника шума: самый разноообразный. Топот ребенка, женский смех, крайне громкое хлопанье входной дверью, передвигание мебели.
В общем весь диапазон шума от жизни в квартире.
Самый раздражающий - двигание стульев по кафелю... У соседки вся квартира в этом кафеле.

Конструкция: дом монолитный. Перегородка между комнатами из пазогребневых плит. Стена входной двери - точно бетон. Стены выходящие на соседей - скорее всего тоже.
Стена выходящая на балкон - кирпич, утепленный минераловатными плитами.

Высота помещения - 2.7 м.
Отделки пока нет.
Точнее т.н. "предчистовая" - то есть оштукатуренные и покрашенные стены. Потолок - плита. Пол - залита стяжка.
Высота от чернового пола до верхней границы порога двери - 7 см.

Задача: звукоизолировать хотя бы спальню, понять оптимальный вариант (по толщине и стоимости).
1) Хотелось бы сравнить варианты безкаркасного и каркасного варианта. Каркасный - качественный, но дорогой. И тяжелее самому сделать... Но насколько он лучше будет для моего случая?

2) Что делать с полом? Так как если на него что-то укладывать, то придется укладывать по всей квартире. Следовательно так же надо понять оптимальный вариант, чтобы хорошо поглощал звук, но не разориться при этом.
Сейчас черновой пол - это стяжка в 5 см. Уже стоит железная дверь, с высотой порога в 7 см.
То есть если разбить стяжку в спальне, то что можно уложить в толщину этих 5 см. + еще пару-тройку сантиметров толщины? Чтобы не создавая порога, постелить верхнюю часть уже по всей квартире.
Допустим так: какая-то звукопоглощающая плита в 5 см, а сверху два слоя чего-то крепкого, но при этом со звукопоглощающим качеством, чтобы пустить по всей квартире.

Заранее благодарю.
Serj_82
 
Сообщения: 3
Зарегистрирован: Чт июл 09, 2020 2:45 pm
Город: Санкт-Петербург

Re: Вариант звукоиоляции пола и стен

Сообщение Yug_Master » Чт июл 16, 2020 10:35 pm

Здравствуйте, пгп для начала нужно снести, это самое "зло" . На месте пгп возвести каркасную перегородку . Пол- соотношение цена-эффективность , стяжка по плитами шумостоп . Остальные стены в спальне, возможно за исключением фасадной системы бескаркасные - Модуль , Ультра или Вектор .
Yug_Master
 
Сообщения: 600
Зарегистрирован: Вс дек 27, 2015 7:48 am
Город: Краснодар

Re: Вариант звукоиоляции пола и стен

Сообщение Serj_82 » Пт июл 17, 2020 7:45 pm

Yug_Master писал(а):Здравствуйте, пгп для начала нужно снести, это самое "зло" . На месте пгп возвести каркасную перегородку . Пол- соотношение цена-эффективность , стяжка по плитами шумостоп . Остальные стены в спальне, возможно за исключением фасадной системы бескаркасные - Модуль , Ультра или Вектор .


Благодарю.
К сожалению работы с перегородкой невозможны, я уже живу в гостиной-кухне... Только обшивать. Надо только понять, с применением какой технологии.
Получается что шум как воздушный, переизлучаемый всеми стенами и полом и потолком, так и ударный.

Не получится ли так, что наоборот, я буду защищать соседку снизу от своего шума, а её шум будет проникать?

И почему за исключением фасадной стены?
Serj_82
 
Сообщения: 3
Зарегистрирован: Чт июл 09, 2020 2:45 pm
Город: Санкт-Петербург

Re: Вариант звукоиоляции пола и стен

Сообщение Yug_Master » Вс июл 19, 2020 10:06 pm

Serj_82 писал(а):
Yug_Master писал(а):Здравствуйте, пгп для начала нужно снести, это самое "зло" . На месте пгп возвести каркасную перегородку . Пол- соотношение цена-эффективность , стяжка по плитами шумостоп . Остальные стены в спальне, возможно за исключением фасадной системы бескаркасные - Модуль , Ультра или Вектор .


Благодарю.
К сожалению работы с перегородкой невозможны, я уже живу в гостиной-кухне... Только обшивать. Надо только понять, с применением какой технологии.
Получается что шум как воздушный, переизлучаемый всеми стенами и полом и потолком, так и ударный.

Не получится ли так, что наоборот, я буду защищать соседку снизу от своего шума, а её шум будет проникать?

И почему за исключением фасадной стены?

Обшивать чем толще тем лучше , от Модуля я бы рассматривал . Пгп лучше снести чем выполнять ЗИ по ней. Если вы обратите внимание то шум идёт именно от этой перегородки . По фасадной не всегда возможно выполнить, по техническим причинам .
Что бы эффективно и правильно подойти к работам по звукоизоляции необходим демонтаж, результат-эффективно , дешевле выйдет .
Yug_Master
 
Сообщения: 600
Зарегистрирован: Вс дек 27, 2015 7:48 am
Город: Краснодар


Вернуться в Звукоизоляция

Кто сейчас на конференции

Сейчас этот форум просматривают: нет зарегистрированных пользователей и гости: 47

cron