Звукоизоляция квартиры.Посоветуйте типовое бюджетное решение

Что такое "плавающий пол", как правильно возвести звукоизоляционную перегородку, как снизить уровень шума в боулинге, фитнесс-зале, офисе, как звукоизолировать вентилятор, насос, домашний кинотеатр и т.д.

Модераторы: Виталий Роденков, Александр Фадеев, Антон Перетокин, Николай Канев, Андрей Нечаев, Александр Боганик, root, Наталья Ширгина

Звукоизоляция квартиры.Посоветуйте типовое бюджетное решение

Сообщение SergeyKLIM » Ср мар 15, 2017 12:35 pm

Здравствуйте.

Имеется 2ух комнатная квартира суммарной площадью 69 кв/м, предназначенное для проживания семьи (Я, супурга, сын 5ти лет)
Квартира располагается в г.Краснодар, расположена возле оживленной магистрали с трамвайными путями, на 13м этаже.

Тип помещения:
- Конструктивные решения: фундаменты – сплошная железобетонная плита; конструктивная схема – монолитный железобетонный рамно-связевый каркас; наружные стены – облицовочный кирпич 120 мм, газобетонные блоки 300мм; перегородки в сан.узлах – кирпичные 65 мм М100, межквартирные –бетонные блоки 200мм, кирпичные 250 мм М100;стены между лестничной клеткой и квартирой – железобетон 200 мм с облицовкой минераловатными плитами 50 мм и штукатуркой цементно-песчаным раствором 25мм; кровля – скатная из профнастила с внутренними водостоками. Фасад комбинированный – облицовочный кирпич, штукатурка и окраска.
-Штукатурка наружных и внутренних межквартирных стен, с устройством стяжки полов;
- Окна и балконные блоки – металлопластиковые;

Необходимо добиться звукоизоляции воздушного шума "обычного приемлемого" уровня проживания.
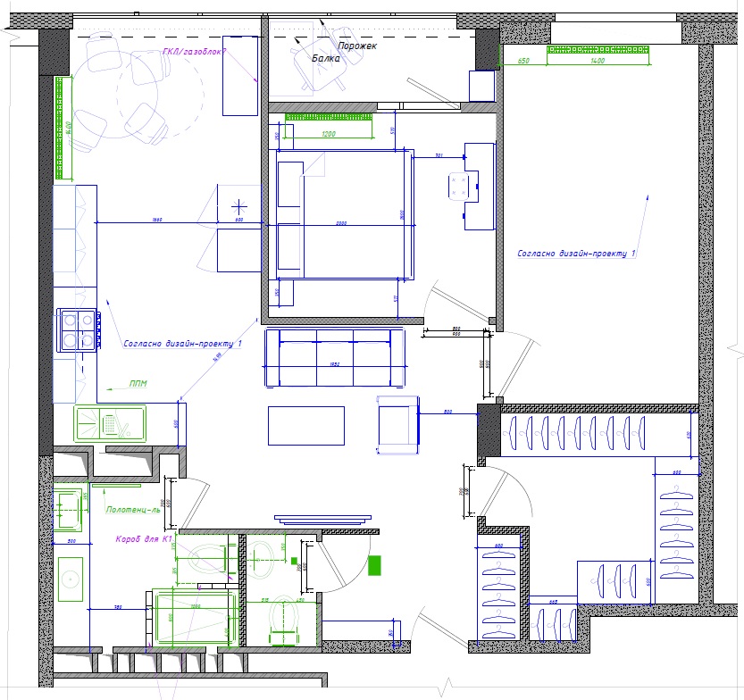
Особое внимание хочется уделить спальной комнате(находится посреди помещения на плане)
В основном мы хотим что бы нам не мешали звуки с кухни, детской и соседей сверху(хотя я не уверен что они будут шумные)

Планировочное решение которые мы будем реализовывать
планировчоное решение.jpg
планировчоное решение.jpg (191.92 КБ) Просмотров: 3162


Вариант планировки в ДДУ от застройщика(слева, оранжевая, номер 207)
https://www.dropbox.com/s/3200kni8hrrb8 ... 7.jpg?dl=0

Фотографии помещения изнутри по ссылке
https://www.dropbox.com/sh/wj6h62coiert ... 1bKAa?dl=0

Вопрос
Помогите выбрать материал для межкомнатных перегородок в соотношении цена качества.

На данный момент я рассматриваю решение в такой последовательности в порядке приоритета:
1. Газоблок 100м + штукатурка с обеих сторон по всей квартире(все перегородки)
Понимаю что не лучшее решение с точки зрения ЗИ, но с материалом умеют работать местные строители и оно бюджетное.
Каковы показатели ЗИ газоблока в цифрах или по отношению к другим материалам?

2. Газоблок(или кирпич) для отделения лоджии от спальни и кухни,
далее система knauf W112 толщиной 100(или 125,150) для перегородок спальни. (ну или http://www.acoustic.ru/constructions/zv ... gorodok/8/ Интересное решение, но дороговато...)
стены гардеробной - газоблок
стены между ванной и гостевым туалетом - газоблок с нанесением водо-отталкивающего покрытия.

3. ПГП 100(волма или knauf) + Саундлайн-ПГП Супер,
http://www.acoustic.ru/productions/tonk ... PGP_Super/

Посоветуйте как не остаться без штанов, но при этом что бы можно было спать в спальне не слушая как разговаривают на кухне или в гостинной при включенном ТВ на обычную громкость.
SergeyKLIM
 
Сообщения: 3
Зарегистрирован: Вт мар 14, 2017 9:32 am
Город: Москва

Re: Звукоизоляция квартиры.Посоветуйте типовое бюджетное реш

Сообщение Александр Фадеев » Ср мар 15, 2017 3:52 pm

Здравствуйте, SergeyKLIM.
Для того чтобы хотя бы приблизительно количественно оценить звукоизоляцию данных решений, необходимо привести плотность рассматриваемых материалов.
Если говорить о качественной составляющей, то все перечисленные конструкции, кроме кирпича, будут иметь низкую собственную изоляцию воздушного шума, а также хорошо переизлучать структурный шум. Всё это обусловлено невысокой плотностью блоков. В качестве альтернативы предлагаю всё же рассмотреть каркасные звукоизоляционные перегородки, которые удовлетворяют требованиям СП 51.13330.2011 для индекса изоляции воздушного шума для межкомнатных перегородок в квартире (Rw≥43 дБ).
Александр Фадеев
 
Сообщения: 1473
Зарегистрирован: Ср июн 25, 2008 1:26 pm
Город: Москва

Re: Звукоизоляция квартиры.Посоветуйте типовое бюджетное реш

Сообщение SergeyKLIM » Ср мар 15, 2017 4:23 pm

Александр Фадеев писал(а):Здравствуйте, SergeyKLIM.
Для того чтобы хотя бы приблизительно количественно оценить звукоизоляцию данных решений, необходимо привести плотность рассматриваемых материалов.
Если говорить о качественной составляющей, то все перечисленные конструкции, кроме кирпича, будут иметь низкую собственную изоляцию воздушного шума, а также хорошо переизлучать структурный шум. Всё это обусловлено невысокой плотностью блоков. В качестве альтернативы предлагаю всё же рассмотреть каркасные звукоизоляционные перегородки, которые удовлетворяют требованиям СП 51.13330.2011 для индекса изоляции воздушного шума для межкомнатных перегородок в квартире (Rw≥43 дБ).


Спасибо за ответ.
а из чего сделать перегородку между лоджией (холодная) и спальней/кухней?
введь по нормам пожарной безопасности я так понимаю это должна быть не ГКЛ/ГВЛ + на нее будет навешиваться радиатор
SergeyKLIM
 
Сообщения: 3
Зарегистрирован: Вт мар 14, 2017 9:32 am
Город: Москва

Re: Звукоизоляция квартиры.Посоветуйте типовое бюджетное реш

Сообщение Александр Фадеев » Ср мар 15, 2017 4:34 pm

Затрудняюсь прокомментировать решения с точки зрения теплоизоляции и действующих норм по пожарной безопасности. Лучше обратиться к экспертам.
Навестить радиатор на каркасную перегородку возможно, необходимо предусмотреть закладные из фанеры или деревянного бруса.
Александр Фадеев
 
Сообщения: 1473
Зарегистрирован: Ср июн 25, 2008 1:26 pm
Город: Москва


Вернуться в Звукоизоляция

Кто сейчас на конференции

Сейчас этот форум просматривают: нет зарегистрированных пользователей и гости: 55

cron