Richi » Пн ноя 02, 2015 11:21 pm
Я пробовал провести обследование поверхностей по описанной методике. Но как назло кроме ударного шума пока ничего не услышал только шаги, передвижение мебели. И этот шум идет от всех поверхностей примерно с одинаковой интенсивностью. Когда ухо убираешь от поверхности, сразу кажется, что шумит потолок. Но это ударный шум, а я так понимаю, надо ждать, когда удастся проанализировать воздушный шум, результат будет иным?
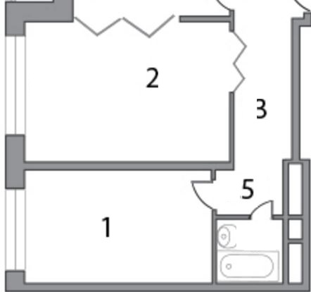
Добавил небольшие уточнения в планировку, обозначил красным, где стоит шкаф. Сам шкаф не имеет задней и правой стенок. Только левая стенка (лист дсп), профиль для передвижения дверей на потолке, поперечные полки и вертикальные стенки. Профиль крепится саморезами к планке из дсп, которая жестко прикреплена потолку(см фото). Стенки жестко прикреплены к стене на угловые крепления (один саморез в стенку шкафа, второй в стену, см фото). Ни одна из полок или вертикальных стенок к потолку не прикреплены, все они крепятся к стенам. Но зазоров и щелей нет, т.е. все стенки контачат либо с потолком либо со стенами.
Я для себя первоначально решил, что шкаф наполненный вещами должен как бы наоборот выступать в роли звукоизолятора: двери довольно тяжелые и закрываются сравнительно плотно (имеют мягкую прокладку, чтобы не стукались)
Если "обрезать" шкаф, то как это лучше сделать? Вокруг него по контуру сделать пятнадцатисантиметровый выступ (деревянный брусок?), чтобы через Вибростек стыковать плиты ЗИПС уже с ним а не с элементами конструкции шкафа?
- Вложения
-

- шкаф на плане
- 444.jpg (29.04 КБ) Просмотров: 6721
-

- крепление внутренних перегородок шкафа к стене
- s5.jpg (171.91 КБ) Просмотров: 6721
-

- крепление алюминиевого профиля к планке из дсп на потолке
- s4.jpg (144.34 КБ) Просмотров: 6721
-

- стык шкафа со стеной из блоков
- s3.jpg (103.16 КБ) Просмотров: 6721