Шум от лифтовой шахты

Что такое "плавающий пол", как правильно возвести звукоизоляционную перегородку, как снизить уровень шума в боулинге, фитнесс-зале, офисе, как звукоизолировать вентилятор, насос, домашний кинотеатр и т.д.

Модераторы: Виталий Роденков, Александр Фадеев, Антон Перетокин, Николай Канев, Андрей Нечаев, Александр Боганик, root, Наталья Ширгина

Шум от лифтовой шахты

Сообщение elena_vl » Чт окт 29, 2015 12:16 pm

Добрый день! Надеюсь, что подобного рода вопрос можно задавать на форуме. У меня стена на кухне примыкает к лифтовой шахте. Шум и грохот стоит в квартире круглосуточно. Очень прошу порекомендовать специалиста или компанию в Санкт-Петербурге с правильными руками, которые смогут качественно выполнить шумоизоляционные работы. Сложность состоит в том, что работы нужно провести при минимальном съеденном пространстве (комната и так как вагон 5х3, и сокращать придется ту, которая 3).
elena_vl
 
Сообщения: 6
Зарегистрирован: Ср окт 28, 2015 11:28 pm
Город: Санкт-Петербург

Re: Шум от лифтовой шахты

Сообщение vasilii » Чт окт 29, 2015 12:55 pm

Извиняюсь за наивный вопрос - что было написано в ответе на. ваше зарегистрированное заявление в Роспотребнадзор о превышении уровней шумов в ЖИЛЫХ комнатах в период с 24.00- 6.00
Вы несомненно пробежали материалы на специализированных форумах prolift.ru. и liftforum.ru и спец . ализированный форум " Клуб защитников тишины" и
знаете , что в силу специфики возникновения и распространения шумов шахты и мотора мероприятия там и с лифиом - первая ступень ЗВУКОИЗОЛЯЦИИ КВАРТИРЫ .Поскольку ни одна конструкция не даст столько , сколько более дешёвые + для вас бесплатные мероприятия лифтовой компании и УК по предписанию питерского Роспотребнадзора .
Просьба сообщить результаты измерений Роспотребнадзора по вашему зарегистрированному заявлению .о превышении норм шумов от ЛИФТА в квартире в период 24-00- 6.00 ..
Формально - можно было бы ограничиться периодом ночного времени из СН и СанПиН - 23.00-7.00
Но лучше перестраховаться . Не вздумайте писать в заяве , что вам мешают шумы днём, утром и вечером - ночные нормы на 10(15) дБ жёстче ....

ПИСЬМЕННОЕ ЗАРЕГИСТРИРОВАННОЕ заявление с отметкой на копии.
Если вы не конфликтный и добрый человек - то можете эти три заявления зарегистрировать В УК и ТСЖ и Лифтовой компании ..Тоже зарегистрировать и с намёком при не принятии мер обратится в Роспотребнадзор и ЖИ г.Санкт-Петербурга.
Самое эффективное мероприятие по звукоизоляции от ЛИФТА в квартире - силами УК и Лифтовой ...
2) В 2011 я выложил на этом отличном форуме брошюру с сборкой юридических и не юридических методов ,способов , инстанций , действий, материалов и конструкций в помещении лифтового мотора .Может там найдёте что полезное ..
vasilii
 
Сообщения: 363
Зарегистрирован: Пн мар 30, 2009 4:06 pm

Re: Шум от лифтовой шахты

Сообщение elena_vl » Чт окт 29, 2015 1:13 pm

Спасибо за ответ! В Роспотребнадзор обращалась. Так как замеряли днем, то делали расчеты ночного превышения шума с поправкой на коэффициент. Выписали предписание, но УК честно признается, что выполнить требования Роспотребнадзора не может. Все что они там корячились делали за те полгода что им дал Роспотребнадзор на устранение недостатков, хватало на 2 недели. Сейчас Роспотребнадзор на них подает в суд. Отношения у меня с УК конструктивные, они мне помогают решить вопрос финансовой компенсации со стороны строительной компании.
А брошюру где можно прочитать?
elena_vl
 
Сообщения: 6
Зарегистрирован: Ср окт 28, 2015 11:28 pm
Город: Санкт-Петербург

Re: Шум от лифтовой шахты

Сообщение Вохмянин Михаил » Чт окт 29, 2015 2:38 pm

Добрый день!
Перед тем как приступать к монтажным работам хорошо бы определиться с решениями.
Учитывая вашу ситуацию, единственным вариантом остается полная звукоизоляции в комнаты: пол, потолки стены. Про специфику шума от лифта уже написали: шум распространяется структурно по каркасу здания, в его переизлучении участвуют практически все поверхности в комнате (пол, потолок, стены). Тем более, что вы пишите:
elena_vl писал(а):Шум и грохот стоит в квартире круглосуточно

Выполняется плавающий пол, каркасный звукоизоляционный потолок, облицовки существующих стен. Толщины конструкций будут от 80 мм. Звукоизоляция одной поверхности задачу не решит. Либо, что более правильно, выполнять работы по виброизоляции и настройке лифтового оборудования. Об этом уже тоже написали.
Вохмянин Михаил
 
Сообщения: 370
Зарегистрирован: Вт янв 25, 2011 12:16 pm
Город: Санкт-Петербург

Re: Шум от лифтовой шахты

Сообщение elena_vl » Чт окт 29, 2015 3:01 pm

Спасибо за ответ! А что я могу попросить УК конкретно сделать в отношении той части лифтовой шахты, что примыкает непосредственно к моей квартире? Они могут, например, проложить какой-то шумоизоляционный материал со строны лифтовой шахты? Я даже не так спрошу. Какие вопросы я должна сейчас задать Ук, чтобы понять, все ли возможности они использовали? Речь идет о 27-этажном кирпич-монолите, моя квартира на 15-м этаже.
elena_vl
 
Сообщения: 6
Зарегистрирован: Ср окт 28, 2015 11:28 pm
Город: Санкт-Петербург

Re: Шум от лифтовой шахты

Сообщение Андрей Галынский » Чт окт 29, 2015 3:44 pm

Здравствуйте!
Боюсь, что проложить какой-то шумоизоляционный материал со стороны лифтовой шахты никто не сможет. Единственное, что можно, это применить виброизолирующие опоры под лебедку, что поднимает лифт. Вот тут будет эффект. Вы должны пожаловаться в УК на шумы от лифта и попросить провести замеры. Если они будут превышать СНиПовские, то смело требуйте принятия конкретных мер. У нас (в компании Акустик Групп) были успешные случаи решения таких проблем. Решалось все заменой штатных виброопор лебедки на специальные.
Кроме того, шум идет и от полозьев, по которым кабина лифта движется. Следует так же заменить штатные крепления на виброизоляционные. Тут только комплексный подход должен быть.
Андрей Галынский
 
Сообщения: 39
Зарегистрирован: Ср авг 20, 2014 5:11 pm
Город: Минск

Re: Шум от лифтовой шахты

Сообщение vasilii » Чт окт 29, 2015 5:08 pm

elenа_vl- на файлообменнике- по ссылке
viewtopic.php?f=1&t=1816&p=8713&hilit=%D1%88%D1%83%D0%BC+%D0%BB%D0%B8%D1%84%D1%82%D0%B0&sid=3f5b36a3d385349f6cee69613a5e3b46#p8713
И на упомянутых мной двух отличных форумах инженеров и механиков лифтового оборудования есть ветки по шумам лифтов .
Можете просмотреть эти ведущиеся давно темы по шумам ЛИФТА .
Они ребята - профи . И конкретно по лифтам всегда отвечают
Я имею в виду два упомянутых мной форума
Пролифт.ну
И
Лифтфорум.ру
Зарегистрироваться там легко ..
В добавку к советам инженеров- акустиков АГ и та инфа вам будет может полезна ..
vasilii
 
Сообщения: 363
Зарегистрирован: Пн мар 30, 2009 4:06 pm

Re: Шум от лифтовой шахты

Сообщение elena_vl » Пт окт 30, 2015 1:28 pm

vasili, к сожалению, файл на обменнике один удален, второй крайне завирусован :cry:
Михаил, я вижу что вы из СПб, может быть ответите на мой изначальный вопрос?
elena_vl
 
Сообщения: 6
Зарегистрирован: Ср окт 28, 2015 11:28 pm
Город: Санкт-Петербург

Re: Шум от лифтовой шахты

Сообщение Вохмянин Михаил » Пт окт 30, 2015 1:41 pm

Я вам ответил в ЛС.
Вохмянин Михаил
 
Сообщения: 370
Зарегистрирован: Вт янв 25, 2011 12:16 pm
Город: Санкт-Петербург

Re: Шум от лифтовой шахты

Сообщение elena_vl » Ср ноя 18, 2015 4:36 pm

Уважаемые господа! Хотелось бы продолжить тему. Неделю назад УК вновь проводила ремонтные работы в лифтовой шахте, после этого были сделаны замеры шума в квартире. При полной тишине ночью это 24,6, днем 26,7, максимальный шум от лифта 45- 47 соответственно.
Сейчас я получила вот какое предложение:
ед. изм. кол-во Материалы
на ед. всего
Устройство звукоизолирующего пола - плавающая стяжка кв. м. 15,00
акустическая вата Шумoстоп С-2, кв.м 1,20 18,0
Пленка полиэтиленовая кв.м. 1,10 17
Сетка арматурная м2 1,15 17
ЦПС м3 0,08 1,20
Обшивка стены панелями ЗИПС-Модуль кв. м. 13,00
Вибростек -М, Ленточная звукоизоляционная прокладка кв. м. 0,10 1,00
Вибросил, силиконовый нейтральный герметик шт. 0,10 1,00
Комлект крепежа панелей "Стена/потолок" шт. 1,39 20
Звукоизолирующая панель ЗИПС-Модуль шт. 1,06 14,12
Обшивка стены ГКЛА по панелям ЗИПС-Модуль кв. м. 13,00
Лист ГКЛА 2500х1200 кв.м 1,15 15,0
Крепеж ГКЛ шт. 22,00 286,00

У меня нет сомнений, что предложение верное.
Но все-таки остаются вопросы:
1) обязательна ли схема работ: модуль + ГКЛА, или можно оптимальнее, при указанных выше параметрах шума? (все-таки очень стена сокращается). 2) если к этой стене примыкает воздуховод, обязательно ли его закрывать? 3) предлагается плавающий пол делать не на кухне, а в спальне, т.к. самая сложная проблема, это ночной шум.
elena_vl
 
Сообщения: 6
Зарегистрирован: Ср окт 28, 2015 11:28 pm
Город: Санкт-Петербург

Re: Шум от лифтовой шахты

Сообщение Вохмянин Михаил » Чт ноя 19, 2015 1:56 pm

Приводя цифры уровня шума надо понимать, на какой частоте эти децибеллы. Звукоизоляция зависит от частоты, при этом, основная проблема с низкочастотным диапазоном. Но если говорить в целом, то 20 дБ это довольно много.
Если есть структурное распространение шума (а по опыту "борьбы" с лифтовым шумом, так оно и есть), то звукоизоляция одной стены кардинально не изменит ситуацию, и в таком случае уже надо думать про комплексное решение... как минимум в той комнате, где нужна тишина.
Про воздуховод - если вы подразумеваете вентиляционную шахту, то надо звукоизолировать сами стенки шахты (это косвенная передача шума). Что касается самого отверстия под вытяжку, то надо посмотреть, идет ли через него шум. В данной ситуации скорее первое (то есть, стенки переизлучают лифтовой шум).
Вохмянин Михаил
 
Сообщения: 370
Зарегистрирован: Вт янв 25, 2011 12:16 pm
Город: Санкт-Петербург

Re: Шум от лифтовой шахты

Сообщение elena_vl » Пт ноя 20, 2015 11:35 am

Михаил, спасибо за ответ! Замер шума происходил на низкой частоте в дБА.
Вопросы, собственно в чем: 1) Можно ли вместо модуль+ГКЛА использовать принцип ГКЛА+штукатурка? 2) Насколько реально сработает принцип, что звукоизолируем стену на кухне, а плавающий пол делаем в спальне 3) Каким-то образом на распределение шума может повлиять установка крупного кухонного гарнитура? Я эти все вопросы не просто так задаю. Я никогда не сталкивалась с ситуацией "до и после" проведения шумоизоляционных работ. Отсюда очень сложно понять коэффициент отдачи от вложенных сил и средств. Вполне возможно, что в моей ситуации есть смысл судиться с компанией о замене квартиры, чем делать полномасштабный комплекс работ по устранению шума.
elena_vl
 
Сообщения: 6
Зарегистрирован: Ср окт 28, 2015 11:28 pm
Город: Санкт-Петербург

Re: Шум от лифтовой шахты

Сообщение vasilii » Пт ноя 20, 2015 12:35 pm

1) Принцип работы любых конструкций дополнительной звукоизоляции( законы природы - строительной физики ) - развязка от изолируемой поверхности и промежуток не менее 4-5 см ( реально -6 ) , заполненный звукопоглощающим материалом .
Лист ГКЛ , прилепленный непосредственно на стену не добавит звукоизоляции , А в большинстве случаев увеличивает громкость звуков .
2) Обследуйте все 7 - 9 поверхностей- ОБЯЗАТЕЛЬНО..
И ПОТОЛОК !!
Метод С.Шумакова -
viewtopic.php?f=1&t=2917&p=14632&hilit=%D1%88%D1%83%D0%BC%D0%B0%D0%BA%D0%BE%D0%B2%D0%B0&sid=fb52ae46a81da55b45781351261f78e6#p14632.
Проставьте условные баллы по переизлучении в обоих графах и сами решайте , какие поверхности , в наибольшей степени излучаюшие звуки лифта нуждаются в звукоизоляции дополнительной .
3) Кухонный гарнитур , при условии что он не будет соединять ЗВУКОИЗОЛЯЦИОННЫЕ облицовки( пола , стен , потолка) и защищаемые( не изолированные ) поверхности не влияет никак .
vasilii
 
Сообщения: 363
Зарегистрирован: Пн мар 30, 2009 4:06 pm

Re: Шум от лифтовой шахты

Сообщение Вохмянин Михаил » Пт ноя 20, 2015 2:20 pm

По замене квартиры не скажу, но на моей практике было два случая, когда хозяева квартир судились и застройщик выкупал у них квартиру. Называть застройщика не буду - очень известная компания в Петербурге (правда и клиенты были не совсем простые, но тем не менее).
Вохмянин Михаил
 
Сообщения: 370
Зарегистрирован: Вт янв 25, 2011 12:16 pm
Город: Санкт-Петербург

Re: Шум от лифтовой шахты

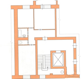
Сообщение blg_mas87 » Пн фев 01, 2016 3:00 pm

Здравствуйте! Подскажите, пожалуйста как быть??? Слышно лифт в квартире.

Ситуация следующая. Квартира находится на 9-м этаже, этаж последний. Над квартирой находится технический этаж. Стенка выходит на площадку перед лифтом. Эта же боковая стенка на техническом этаже соприкасается с машинным отделением лифта. В квартире слышен шум работы лифта, щелчки (магнитные пускатели) при подъеме-спуске лифта, причем слышно очень хорошо. Слышно во всех комнатах.

Поможет ли звукоизоляция машинного отделения? Или лучше виброизолировать инженерные конструкции? (Чем?)

Выложил план 9-го этажа и фотографии лебедки и релейного шкафа

Заранее благодарен.
Вложения
План квартиры.jpg
План квартиры.jpg (25.3 КБ) Просмотров: 31274
Лебёдка.png
Лебёдка.png (182.53 КБ) Просмотров: 31276
Шкаф реле.jpg
Шкаф реле.jpg (20.33 КБ) Просмотров: 31276
blg_mas87
 
Сообщения: 1
Зарегистрирован: Вс янв 31, 2016 9:52 am
Город: Благовещенск

След.

Вернуться в Звукоизоляция

Кто сейчас на конференции

Сейчас этот форум просматривают: нет зарегистрированных пользователей и гости: 43

cron