Звукоизоляция от ударного шума в панельном доме

Что такое "плавающий пол", как правильно возвести звукоизоляционную перегородку, как снизить уровень шума в боулинге, фитнесс-зале, офисе, как звукоизолировать вентилятор, насос, домашний кинотеатр и т.д.

Модераторы: Виталий Роденков, Александр Фадеев, Антон Перетокин, Николай Канев, Андрей Нечаев, Александр Боганик, root, Наталья Ширгина

Звукоизоляция от ударного шума в панельном доме

Сообщение Ligalize » Пн июл 28, 2014 4:52 pm

Здравствуйте господа !

Начну сначала. Пол года назад купили квартиру на первом этаже девятиэтажного панельного дома (так называемые "кресты"). И буквально на следующее утро после покупки я проснулся от дичайшего грохота на кухне - думал шкаф упал, а на самом деле оказалось, что за кухонной стеной находится мусоропровод и мусорный бак. Естественно весь мусор с верхних этажей долетая до низу грохочет неимоверно :evil: а если это ещё и стекло, так вообще мама не горюй ...
День через день в 7:30 утра дворник выкатывает мусорный бак и "убирается" в мусорном отсеке - опять же дикий шум, а спим мы до 9:00 - работаем до поздна.
Зимой эта смежная стена промерзает, покрывается инеем и образуется конденсат.

Второй месяц штудирую форумы, но ни где не могу найти решения, как спастись от такой напасти =\
Помогите пожалуйста избавиться от этой проблемы, желательно с наименьшими затратами !?

Заранее всем спасибо !
Ligalize
 
Сообщения: 3
Зарегистрирован: Пн июл 28, 2014 4:41 pm
Город: Барнаул

Re: Звукоизоляция от ударного шума в панельном доме

Сообщение Антон Перетокин » Вт июл 29, 2014 9:11 am

Добрый день!
Шум, который вы описали, является ударным шумом. При соударении мусора о стенки мусоропровода и контейнер шум передается на ограждающие конструкции дома (межэтажные перекрытия и стены). Следовательно, такой шум проникает к вам и через упомянутую вами стенку, и через остальные стены, пол и, возможно, потолок.
У нас был опыт снижения шума от мусоропровода: решение по звукоизоляции заключалось в исключении жесткой связи между трубой мусоропровода и перекрытием путем применения упругой прокладки (в том случае труба была закреплена жестко к перекрытию). Но у вас ситуация иная: поскольку вы живете на 1 этаже, у вас присутствует еще и шум при попадании мусора в контейнер, и шум при выкатывании контейнера. Виброизоляция мусоропровода скорее всего не решит проблему полностью.
Единственным полноценным решением будет устройство звукоизоляционных конструкций в комнате по всем поверхностям (пол, потолок и стены), что повлечет за собой уменьшение размеров комнаты с каждой поверхности минимум на 9-10 см.
Антон Перетокин
 
Сообщения: 652
Зарегистрирован: Вт май 19, 2009 11:33 am
Город: Москва

Re: Звукоизоляция от ударного шума в панельном доме

Сообщение Ligalize » Вт июл 29, 2014 6:01 pm

Спасибо за отклик !

Вот в том то и вопрос, какими материалами и по какой технологии сделать шумку в квартире, 10 см. не критичны.
Подсобите ?
Ligalize
 
Сообщения: 3
Зарегистрирован: Пн июл 28, 2014 4:41 pm
Город: Барнаул

Re: Звукоизоляция от ударного шума в панельном доме

Сообщение Антон Перетокин » Ср июл 30, 2014 9:19 am

При полной звукоизоляции комнаты, как правило, используется следующая схема:
1. На полу устраивается плавающая стяжка по слою звукоизоляционных плит ШУМОСТОП-К2/С2, толщина стяжки при этом 70-80 мм, стяжка выполняется из пескобетона марки М300 с обязательным армированием стяжки металлической сеткой. К стенам стяжка примыкает через двойной слой прокладки ВИБРОСТЕК. После устройства стяжки излишки прокладки обрезаются, образованный шов заполняется герметиком ВИБРОСИЛ.
2. На потолке применяется каркасная подвесная конструкция на виброподвесах ВИБРОФЛЕКС-К15. Каркас монтируется из профилей ПП60/27 и ПН28/27 в 2 уровня, внутреннее пространство каркаса закладывается звукопоглощающими плитами ШУМАНЕТ-ЭКО в 2 слоя. Далее по каркасу выполняется облицовка двойным слоем гипсовых листов: гипсоволокнистым листом толщиной 10 мм и гипсокартонным листом толщиной 12,5 мм. К стенам конструкция звукоизоляционного потолка примыкает через двойной слой прокладки ВИБРОСТЕК. После устройства стяжки излишки прокладки обрезаются, образованный шов заполняется герметиком ВИБРОСИЛ.
3. Стены по периметру помещения зашиваются звукоизоляционными облицовками на независимом каркасе. Каркас выполняется из профилей ПС50/50 и ПН50/40, крепится только к полу и потолку, между стеной и каркасом должен быть зазор не менее 10 мм. Далее в каркас закладываются звукопоглощающие плиты ШУМАНЕТ-ЭКО, по каркасу выполняется обшивка двойным слоем гипсоволокнистых листов по 10 мм и финишным слоем гипсокартона толщиной 12,5 мм. Аналогично конструкции потолка, по периметру примыкания облицовок к смежным поверхностям применяется прокладка ВИБРОСТЕК в 2 слоя, далее шов обрабатывается герметиком ВИБРОСИЛ.
Ниже приведена схема звукоизоляции помещения с описанными выше конструкциями:
Вложения
СХЕМА ЗВУКОИЗОЛЯЦИИ.jpg
СХЕМА ЗВУКОИЗОЛЯЦИИ.jpg (2.53 МБ) Просмотров: 11493
Антон Перетокин
 
Сообщения: 652
Зарегистрирован: Вт май 19, 2009 11:33 am
Город: Москва

Re: Звукоизоляция от ударного шума в панельном доме

Сообщение Ligalize » Ср июл 30, 2014 4:57 pm

Антон Перетокин писал(а):При полной звукоизоляции комнаты, как правило, используется следующая схема:


Очень исчерпывающе, большое спасибо ! :D
Вот только один вопрос, зашивать стены обязательно все ? Или можно зашить только смежную ?!
Ligalize
 
Сообщения: 3
Зарегистрирован: Пн июл 28, 2014 4:41 pm
Город: Барнаул

Re: Звукоизоляция от ударного шума в панельном доме

Сообщение Антон Перетокин » Ср июл 30, 2014 5:04 pm

Поскольку шум структурный и потенциально может передаваться по всем поверхностям - зашивать придется все стенки.
Антон Перетокин
 
Сообщения: 652
Зарегистрирован: Вт май 19, 2009 11:33 am
Город: Москва

Re: Звукоизоляция от ударного шума в панельном доме

Сообщение evgsurf » Пн авг 11, 2014 11:51 am

В данной конструкции не применяются крепления настенный виброизолирующие.
Как можно оценить данную конструкцию по сравнению с конструкцией с такими креплениями ?
evgsurf
 
Сообщения: 141
Зарегистрирован: Пн дек 03, 2012 4:55 pm

Re: Звукоизоляция от ударного шума в панельном доме

Сообщение Антон Перетокин » Пн авг 11, 2014 12:33 pm

Добрый день!
За счет того, что крепления нежесткие, звукоизоляционная эффективность данного решения не пострадает с применением виброподвесов ВИБРОФЛЕКС-КС для крепления каркаса облицовки к стене.
Антон Перетокин
 
Сообщения: 652
Зарегистрирован: Вт май 19, 2009 11:33 am
Город: Москва

Re: Звукоизоляция от ударного шума в панельном доме

Сообщение Palich » Ср май 20, 2015 5:51 pm

Здравствуйте!
Квартира 60 м2 в монолитном доме. Сделал раскладку плит шумостоп. Прошу просмотреть, все ли я сделал правильно?
Вложения
Деформ. швы и ПН.jpg
Деформ. швы и ПН.jpg (201.14 КБ) Просмотров: 10524
План перегородок.jpg
План перегородок.jpg (215.78 КБ) Просмотров: 10524
Palich
 
Сообщения: 13
Зарегистрирован: Пн апр 20, 2015 9:31 am
Город: Саратов

Re: Звукоизоляция от ударного шума в панельном доме

Сообщение Андрей Нечаев » Ср май 20, 2015 8:17 pm

Добрый вечер. Насчет раскладки плит Шумостоп вроде все нормально, а вот по облицовкам вопрос, почему не облицовываете несущие пилоны? Кроме того, если предусматривается комплексная звукоизоляция комнат, то примите к сведению, что фасадные стены обычно структурный шум тоже хорошо излучают.
Андрей Нечаев
 
Сообщения: 263
Зарегистрирован: Пн ноя 12, 2007 10:02 am

Re: Звукоизоляция от ударного шума в панельном доме

Сообщение Palich » Чт май 21, 2015 8:20 am

Андрей Нечаев писал(а):Добрый вечер. Насчет раскладки плит Шумостоп вроде все нормально, а вот по облицовкам вопрос, почему не облицовываете несущие пилоны? Кроме того, если предусматривается комплексная звукоизоляция комнат, то примите к сведению, что фасадные стены обычно структурный шум тоже хорошо излучают.

А что с ними делать? если их облицовывать, то образуется точка росы.
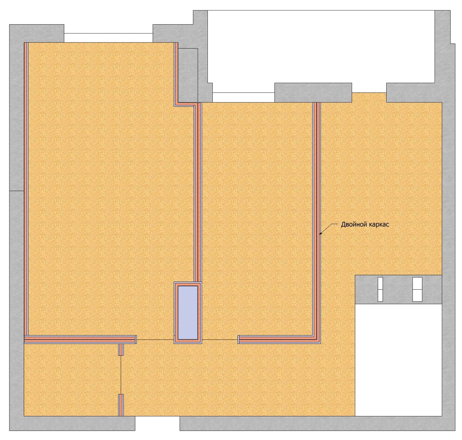
Я думал про пилоны, но в связи с ограниченным бюджетом, я исключил звукоизоляцию пилонов и потолка. В квартире планирую перегородки на одинарном каркасе, облицовку стены между мной и соседом и плавающую стяжку во всей квартире, кроме туалета.
Вложения
Планировка.jpg
Общая планировка
Планировка.jpg (246.2 КБ) Просмотров: 10503
Схема звукоизоляции изначальная.jpg
Схема изоляции полная
Схема звукоизоляции изначальная.jpg (245.7 КБ) Просмотров: 10503
DSC_4520.jpg
DSC_4520.jpg (244.37 КБ) Просмотров: 10503
DSC_4530.jpg
DSC_4530.jpg (245.93 КБ) Просмотров: 10503
Palich
 
Сообщения: 13
Зарегистрирован: Пн апр 20, 2015 9:31 am
Город: Саратов

Re: Звукоизоляция от ударного шума в панельном доме

Сообщение Андрей Нечаев » Чт май 21, 2015 10:09 am

Добрый день. Ну если решили потолок не изолировать, тогда действительно нет смысла звукоизолировать фасадную стену и пилоны. А перегородки межкомнатные нарисованы двухкаркасные.
Андрей Нечаев
 
Сообщения: 263
Зарегистрирован: Пн ноя 12, 2007 10:02 am

Re: Звукоизоляция от ударного шума в панельном доме

Сообщение Palich » Чт май 21, 2015 10:53 am

Андрей Нечаев писал(а):Добрый день. Ну если решили потолок не изолировать, тогда действительно нет смысла звукоизолировать фасадную стену и пилоны. А перегородки межкомнатные нарисованы двухкаркасные.


Изначально хотел двойные, но из-за цен, внес коррективы.

Андрей, мой "бюджетный" вариант звукоизоляции квартиры с шумостопом в 2 слоя и перегородками на одинарном каркасе, между комнатами двойным каркасом имеет право на жизнь? Будет ли "эффект" от этих мероприятий? (при условии соблюдения технологий)???

Андрей, есть ли смысл в двойном каркасе между комнатами? В комнате 1 будет работать негромко телевизор, а в комнате 2 будет детская. И есть ли смысл добавить в перегородку со стороны комнаты 1 3 слой ГКЛ 12,5мм?
Вложения
План перегородок.jpg
План перегородок.jpg (215.78 КБ) Просмотров: 10486
Palich
 
Сообщения: 13
Зарегистрирован: Пн апр 20, 2015 9:31 am
Город: Саратов

Re: Звукоизоляция от ударного шума в панельном доме

Сообщение Вохмянин Михаил » Чт май 21, 2015 11:46 am

Ваш вариант безусловно имеет право на жизнь и эффект от него будет.
Звукоизоляция между комнатами будет определяться не только перегородокой, но и дверным проемом. Если не ставить звукоизоляционную дверь, то я бы ограничился перегородкой на одинарном каркасе (на профиле 100 мм, например).
Вохмянин Михаил
 
Сообщения: 370
Зарегистрирован: Вт янв 25, 2011 12:16 pm
Город: Санкт-Петербург

Re: Звукоизоляция от ударного шума в панельном доме

Сообщение Palich » Чт май 21, 2015 12:12 pm

Вохмянин Михаил писал(а):Ваш вариант безусловно имеет право на жизнь и эффект от него будет.
Звукоизоляция между комнатами будет определяться не только перегородкой, но и дверным проемом. Если не ставить звукоизоляционную дверь, то я бы ограничился перегородкой на одинарном каркасе (на профиле 100 мм, например).


Михаил, двери из массива с плавающим порогом.
А если не будут фасадные стены звукоизолироваться есть ли смысл от облицовки на независимом каркасе от соседней стены?

Квартира скоро сдается поэтому голова пока кругом от очередности работ:
Сначала нужно отштукатурить стены (кроме стены, где будет облицовка)?
Потом раскладка шумостопа и стяжка?
и самое непонятное по перегородкам: межкомнатные перегородки, а потом облицовка? В альбоме нарисован узел, в котором перегородка к стене не крепится, а держится на облицовке... Профиль стоечный не надо к стене прикручивать?
Вложения
Примыкание облицовки.png
Примыкание облицовки.png (45.61 КБ) Просмотров: 10479
Palich
 
Сообщения: 13
Зарегистрирован: Пн апр 20, 2015 9:31 am
Город: Саратов

След.

Вернуться в Звукоизоляция

Кто сейчас на конференции

Сейчас этот форум просматривают: нет зарегистрированных пользователей и гости: 25