Конструкция каркаса подвесного потолка. Направляющий профиль

Что такое "плавающий пол", как правильно возвести звукоизоляционную перегородку, как снизить уровень шума в боулинге, фитнесс-зале, офисе, как звукоизолировать вентилятор, насос, домашний кинотеатр и т.д.

Модераторы: Виталий Роденков, Александр Фадеев, Антон Перетокин, Николай Канев, Андрей Нечаев, Александр Боганик, root, Наталья Ширгина

Конструкция каркаса подвесного потолка. Направляющий профиль

Сообщение es-domak » Пн фев 03, 2020 3:13 pm

Здравствуйте!

Подскажите пожалуйста, по какой технологии-инструкции надо делать монтаж каркаса подвесного звукоизоляционного потолка?
Посмотрел альбомы, есть несколько разных конструкций.
В первую очередь интересует одноуровневый потолок.

Не понятно использование направляющего профиля, который крепится к стене.
Есть мнение, что его использовать вообще нельзя, так как он значительно снижает звукоизоляцию.
Однако, в альбомах Кнауф направляющий профиль используется.

Объясните, пожалуйста, можно ли все-таки использовать направляющий профиль?
Если да, то как правильно его применить, чтобы он "не испортил" звукоизоляцию?
es-domak
 
Сообщения: 53
Зарегистрирован: Пн фев 03, 2020 11:09 am
Город: Луга

Re: Конструкция каркаса подвесного потолка. Направляющий про

Сообщение Yug_Master » Вт фев 04, 2020 7:25 pm

es-domak писал(а):Здравствуйте!
Не понятно использование направляющего профиля, который крепится к стене.

Все логично профиль направляющий , название говорит само за себя.
es-domak писал(а): Есть мнение, что его использовать вообще нельзя, так как он значительно снижает звукоизоляцию.

Можно конкретней , чье мнение , инженеров диванных войск, которые сто лет консультируют , но шурупа не закрутили ?

es-domak писал(а): Однако, в альбомах Кнауф направляющий профиль используется.

Точно не помню , но именно у кнауф потолок упоминается как " плавающий" , который крепится(держится, висит) исключительно на эластичных креплениях и только к потолку . Это двух уровневый каркас .

es-domak писал(а): Объясните, пожалуйста, можно ли все-таки использовать направляющий профиль?

Да , нужно ,механическая жесткость конструкции выше на предмет провисание облицовки , крепление шурупами по краю периметра потолка .

es-domak писал(а): Если да, то как правильно его применить, чтобы он "не испортил" звукоизоляцию?

Применять его в составе двух уровневого потолка и полностью извлекать из него все дюбеля , примыкание через прокладку вибростек м в два слоя .
Yug_Master
 
Сообщения: 600
Зарегистрирован: Вс дек 27, 2015 7:48 am
Город: Краснодар

Re: Конструкция каркаса подвесного потолка. Направляющий про

Сообщение es-domak » Ср фев 05, 2020 11:12 am

Yug_Master писал(а):
es-domak писал(а): Объясните, пожалуйста, можно ли все-таки использовать направляющий профиль?

Да , нужно ,механическая жесткость конструкции выше на предмет провисание облицовки , крепление шурупами по краю периметра потолка .

Крепление шурупами чего к чему?

Yug_Master писал(а):
es-domak писал(а): Если да, то как правильно его применить, чтобы он "не испортил" звукоизоляцию?

Применять его в составе двух уровневого потолка и полностью извлекать из него все дюбеля , примыкание через прокладку вибростек м в два слоя .

То есть направляющий профиль будет на расстоянии 8 мм от стены?
es-domak
 
Сообщения: 53
Зарегистрирован: Пн фев 03, 2020 11:09 am
Город: Луга

Re: Конструкция каркаса подвесного потолка. Направляющий про

Сообщение es-domak » Ср фев 05, 2020 11:18 am

Yug_Master писал(а):Точно не помню , но именно у кнауф потолок упоминается как " плавающий" , который крепится(держится, висит) исключительно на эластичных креплениях и только к потолку . Это двух уровневый каркас .

На мой запрос по звукоизоляционным потолкам, они ответили что не предоставляют решений для звукоизоляции.
А в альбоме Кнауф, который скачивается с их сайта, есть такая схема:

Схема крепления ПН-профиля (Кнауф).png
Схема крепления ПН-профиля (Кнауф).png (27.09 КБ) Просмотров: 24400
es-domak
 
Сообщения: 53
Зарегистрирован: Пн фев 03, 2020 11:09 am
Город: Луга

Re: Конструкция каркаса подвесного потолка. Направляющий про

Сообщение Yug_Master » Ср фев 05, 2020 7:30 pm

es-domak писал(а):На мой запрос по звукоизоляционным потолкам, они ответили что не предоставляют решений для звукоизоляции.


Ничего особого нового и вы меня не удивили . По существу что то не понятно вам еще, более конкретно ?
Yug_Master
 
Сообщения: 600
Зарегистрирован: Вс дек 27, 2015 7:48 am
Город: Краснодар

Re: Конструкция каркаса подвесного потолка. Направляющий про

Сообщение Yug_Master » Ср фев 05, 2020 7:42 pm

es-domak писал(а):
Yug_Master писал(а):
es-domak писал(а): Объясните, пожалуйста, можно ли все-таки использовать направляющий профиль?

Да , нужно ,механическая жесткость конструкции выше на предмет провисание облицовки , крепление шурупами по краю периметра потолка .

Крепление шурупами чего к чему?

Крепление обшивки (гкл , гвл) к профилю .
es-domak писал(а):
Yug_Master писал(а):
es-domak писал(а): Если да, то как правильно его применить, чтобы он "не испортил" звукоизоляцию?

Применять его в составе двух уровневого потолка и полностью извлекать из него все дюбеля , примыкание через прокладку вибростек м в два слоя .

То есть направляющий профиль будет на расстоянии 8 мм от стены?

Через вибростек ,да .
Не увидел сразу ваши вопросы выше.
Yug_Master
 
Сообщения: 600
Зарегистрирован: Вс дек 27, 2015 7:48 am
Город: Краснодар

Re: Конструкция каркаса подвесного потолка. Направляющий про

Сообщение Yug_Master » Ср фев 05, 2020 7:55 pm

Как пример , крепление обшивки по периметру потолка к пн профилю .
Вложения
20191227_151529.jpg
20191227_151529.jpg (167.55 КБ) Просмотров: 24381
Yug_Master
 
Сообщения: 600
Зарегистрирован: Вс дек 27, 2015 7:48 am
Город: Краснодар

Re: Конструкция каркаса подвесного потолка. Направляющий про

Сообщение es-domak » Чт фев 13, 2020 1:17 pm

Применять его в составе двух уровневого потолка и полностью извлекать из него все дюбеля , примыкание через прокладку вибростек м в два слоя .

Для двух-уровневого потолка технология применения направляющего профиля понятна.
Спасибо.

А как использовать направляющий профиль в случае одно-уровневого потолка?
Из него также нужно вынуть все дюбели?
es-domak
 
Сообщения: 53
Зарегистрирован: Пн фев 03, 2020 11:09 am
Город: Луга

Re: Конструкция каркаса подвесного потолка. Направляющий про

Сообщение Yug_Master » Чт фев 13, 2020 8:52 pm

es-domak, у одноуровневого не получиться извлечь дюбеля из направляющих , его просто весь поведет , потолок будет "волнами" . Сетка из профилей в два уровня создает механическую жесткость и позволяет не крепиться к стенам это только в у двухуровневого .
Yug_Master
 
Сообщения: 600
Зарегистрирован: Вс дек 27, 2015 7:48 am
Город: Краснодар

Re: Конструкция каркаса подвесного потолка. Направляющий про

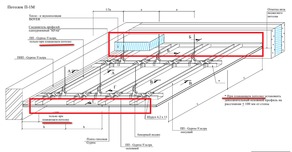
Сообщение es-domak » Вт фев 18, 2020 9:55 am

Yug_Master писал(а):у одноуровневого не получиться извлечь дюбеля из направляющих , его просто весь поведет , потолок будет "волнами"

Странно. А разве ГКЛ-листы подшивки не обеспечат нужной прочности и ровности?
По идее эти листы скрепляют весь каркас.

Кроме того, я скачивал альбомы Gyproc.
Так там у них для одноуровневого потолка есть вариант "плавающего" потолка.
Правда что такое "плавающий потолок" до конца не понятно, так как в тексте альбома про это нету ни одного слова.

Вот схема:
Вложения
Gyproc. Подвесной потолок П-1М. Плавающий. Размер.png
Gyproc. Подвесной потолок П-1М. Плавающий. Размер.png (172.34 КБ) Просмотров: 24127
es-domak
 
Сообщения: 53
Зарегистрирован: Пн фев 03, 2020 11:09 am
Город: Луга

Re: Конструкция каркаса подвесного потолка. Направляющий про

Сообщение Yug_Master » Вт фев 18, 2020 11:46 pm

es-domak писал(а):Странно. А разве ГКЛ-листы подшивки не обеспечат нужной прочности и ровности?
По идее эти листы скрепляют весь каркас.

Обшивка крепится к каркасу , все элементарно . Объясните себе как будет держаться каркас в этих местах , если вытащить все дюбеля из направляющих , на листах обшивки , которая крепится к каркасу , который висит в воздухе . Вообще одноуровневый можно сделать с плавающими краями и провисающей облицовкой по периметру , но скорее это будет подходить под натяжной потолок, потом все затянуть им.
Вложения
Gyproc.png
Gyproc.png (197.45 КБ) Просмотров: 24106
Yug_Master
 
Сообщения: 600
Зарегистрирован: Вс дек 27, 2015 7:48 am
Город: Краснодар

Re: Конструкция каркаса подвесного потолка. Направляющий про

Сообщение es-domak » Ср фев 19, 2020 11:03 am

А что же тогда такое "плавающий" потолок?
Про который упоминается на схеме.
es-domak
 
Сообщения: 53
Зарегистрирован: Пн фев 03, 2020 11:09 am
Город: Луга

Re: Конструкция каркаса подвесного потолка. Направляющий про

Сообщение Yug_Master » Чт фев 20, 2020 10:09 pm

es-domak писал(а):А что же тогда такое "плавающий" потолок?
Про который упоминается на схеме.

Плавающий пол , плавающий потолок это в первую очередь при их устройстве должны быть исключены любые жесткие связи с ограждениями . В приведенной схеме не используются даже виброподвесы . Что конкретно там имелось ввиду без понятия . По существу я могу вам сделать чертеж одноуровневого потолка на виброподвесах с отсутствием креплений у стенам . Я сам как монтажник могу технически вам объяснить , примерно это совпадает с тем что вы выложили . Но нужно иметь в наличии угловую насадку или боковую насадку для шуруповерта , что бы была возможность закрепится с максимально минимального расстояния .
Для этого нужно понимать какие подвесы вы собираетесь использовать , профиль кнауф обязательно или гипрок , что за материал будет при обшивке ?
Yug_Master
 
Сообщения: 600
Зарегистрирован: Вс дек 27, 2015 7:48 am
Город: Краснодар

Re: Конструкция каркаса подвесного потолка. Направляющий про

Сообщение es-domak » Пт фев 21, 2020 10:25 am

Yug_Master писал(а):Плавающий пол , плавающий потолок это в первую очередь при их устройстве должны быть исключены любые жесткие связи с ограждениями .

Понятно.
Yug_Master писал(а):... нужно иметь в наличии угловую насадку или боковую насадку для шуруповерта , что бы была возможность закрепится с максимально минимального расстояния .

Да, уже задумался о покупке. Продаются у нас такие насадки - без проблем.
Yug_Master писал(а):Для этого нужно понимать какие подвесы вы собираетесь использовать , профиль кнауф обязательно или гипрок , что за материал будет при обшивке ?

По подвесам. Если удастся заказать недорогие виброподвесы - то закажу. Если нет - то сделаю обычные прямые подвесы Кнауф через прокладку Вибростек.
Профили Кнауф.
Обшивка - как по рекомендациям ГКЛ10 + ГВЛ12,5.
Yug_Master писал(а):... По существу я могу вам сделать чертеж одноуровневого потолка на виброподвесах с отсутствием креплений у стенам .

Сделайте, пожалуйста.
По крайней мере будет на что ориентироваться.
es-domak
 
Сообщения: 53
Зарегистрирован: Пн фев 03, 2020 11:09 am
Город: Луга

Re: Конструкция каркаса подвесного потолка. Направляющий про

Сообщение Yug_Master » Пт фев 21, 2020 3:02 pm

Звукоизоляция потолка начинается в первую очередь с виброподвесов , если такие не планируете приобретать , то тогда все ваши попытки сделать монтаж без креплений к стенам не имеют никакого практического смысла . По структурно-ударному (передвижение стульев , мебели , падение бытовых предметов , топот ) нужно использовать подвесы с толщиной эластомера 25 мм , как пример к15 виброфлекс.
Далее после подвесов идёт толщина конструкции , затем масса облицовки . К сожаления ваша будет слабовата , уменьшение толщины зи потолка ... Мин. вата , воздушный промежуток , герметичность,так же важно правильное демпфирование по периметру . Отступление от всего этого или изменение , перегруз подвесов , повлекут снижение эффективности. Это потолок , затем идут стены .... но это уже другой этап .
Не хватает финансов , высоты или ещё какие то технические моменты, абсолютно не "интересуют" законы физики и строительной акустики . Таковы реалии, увы .
Поэтому если вас не получается, делайте обычный потолок одноуровневый , по воздушному у вас будет результат .
Yug_Master
 
Сообщения: 600
Зарегистрирован: Вс дек 27, 2015 7:48 am
Город: Краснодар

След.

Вернуться в Звукоизоляция

Кто сейчас на конференции

Сейчас этот форум просматривают: нет зарегистрированных пользователей и гости: 16

cron