Однокомнатная квартира: забыть о соседях сверху и сбоку

Что такое "плавающий пол", как правильно возвести звукоизоляционную перегородку, как снизить уровень шума в боулинге, фитнесс-зале, офисе, как звукоизолировать вентилятор, насос, домашний кинотеатр и т.д.

Модераторы: Виталий Роденков, Александр Фадеев, Антон Перетокин, Николай Канев, Андрей Нечаев, Александр Боганик, root, Наталья Ширгина

Однокомнатная квартира: забыть о соседях сверху и сбоку

Сообщение mka » Чт апр 18, 2019 1:16 pm

Добрый день!
Прошу совета по вопросу звукоизоляции квартиры. Активно изучаю этот вопрос не первый день, но до практического воплощения дело дошло впервые - буду признателен за подсказку.

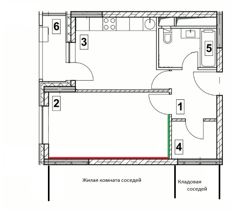
Дано: однокомнатная квартира в монолитной новостройке. Так как дом ещё не сдан и не заселен, реальный уровень шумоизоляции "чистой" конструкции оценить сложно. По документам вне собственно монолита стена будет выложена "мелкоштучными каменными материалами" - я так понимаю, что на деле это может быть что угодно. В других комплексах застройщика особых жалоб на звуки нет, но рисковать не хочется.

Цель: сделать максимально эффективную шумоизоляцию от соседей сверху и сбоку (жилая комната квартиры граничит с жилой же комнатой соседей). При этом хотелось бы минимизировать потери пространства в самой квартире - то есть достичь некоего баланса плюсов и минусов.

Дополнительные технические сведения: квартира сверху имеет аналогичную планировку, по умолчанию в ней будет выполнена фибробетонная стяжка пола с использованием "Пенофола-10" (под стяжку или под ламинат - не знаю). Везде, кроме кухни и ванной, будет уложен ламинат. Можно "поиграться" с материалами с учетом двух ограничений:
а) работы будет выполнять сторонняя бригада;
б) высота стяжки не должна существенно увеличиться по сравнению с предлагаемой "в базе".
Об отделке квартиры сбоку неизвестно ничего. Сделать в ней что-либо не получится.

Найденное решение:
1) Стяжка в квартире сверху выполняется (везде, кроме ванной) на "Maxforte-SoundPRO" или "Шуманет-100Комби".
2) Под ламинат в квартире сверху подкладывается "Акуфлекс".
3) Стена, граничащая с соседями, звукоизолируется плитами ЗИПС-III-Ультра по "красному" варианту.
У Maxforte есть также вариант тонкой каркасной звукоизоляции на плитах 80 кг/м2, ГКЛ и ГВЛ. По заявленной толщине также полностью подходит.

Основные вопросы:
1) Что лучше класть под стяжку: SoundPRO или "Шуманет"? Есть ли у первого какие-то функциональные ограничения с точки зрения использования на кухне и вообще под стяжкой?
2) Можно ли "Акуфлекс" положить под плитку на кухне?
3) Что лучше - плиты или тонкая каркасная звукоизоляция? Что на практике легче монтируется? Даст ли существенный прирост тишины более толстая (80-90 мм) конструкция?
4) Нужно ли дополнительно изолировать перегородку кладовой ("зелёный" вариант на схеме)? Насколько я понимаю, в худшем случае она может передавать шумы от стены в комнату. С другой стороны, она почти соосна аналогичной перегородке у соседей - высоки ли риски связанных с шумом проблем в такой конфигурации?
Вложения
КВАРТИРА план.jpg
КВАРТИРА план.jpg (73.27 КБ) Просмотров: 7875
mka
 
Сообщения: 2
Зарегистрирован: Чт апр 18, 2019 12:45 pm
Город: Москва

Re: Однокомнатная квартира: забыть о соседях сверху и сбоку

Сообщение Андрей Юренко » Чт апр 18, 2019 3:33 pm

Здравствуйте,
б) высота стяжки не должна существенно увеличиться по сравнению с предлагаемой "в базе".
а какая высота в базе?
1) Стяжка в квартире сверху выполняется (везде, кроме ванной) на "Maxforte-SoundPRO" или "Шуманет-100Комби".
это правильное решение. Шуманет100 Комби можно использовать и в ванной.
У Maxforte есть ...
если эффективность констуркций подтверждена протоколами аттестованных лабораторий, то можно сравнивать.
Можно ли "Акуфлекс" положить под плитку на кухне?
нет
плиты или тонкая каркасная звукоизоляция
если под "плитами" подразумевается бескаркасная звукоизоляция ЗИПС Ультра толщиной 55мм (индекс дополнительной звукоизоляции 11-13 дБ), то эффективнее конечно же каркасная ЗИ (15-17 дБ) толщиной 90мм.
Нужно ли дополнительно изолировать перегородку кладовой
если она из тонких пеноблоков или пазогребневых блоков до 100мм, то лучше ее обшить панелями Саундлайн-ПГП. Если сделаете соседу сверху эффективную защиту под стяжку от ударного шума, то можно и обойтись без звукоизоляции этой перегородки.
Андрей Юренко
 
Сообщения: 575
Зарегистрирован: Чт окт 27, 2016 11:49 am
Город: Краснодар

Re: Однокомнатная квартира: забыть о соседях сверху и сбоку

Сообщение mka » Чт апр 18, 2019 4:12 pm

Андрей Юренко, спасибо за ответы!

Андрей Юренко писал(а): а какая высота в базе?

Это только предстоит выяснить - пока кроме "фибробетонная стяжка с "Пенофол-10" о ней больше ничего не известно. Понимаю, что этого недостаточно, поэтому предварительно ориентировался на сравнимые показатели толщины подложки.

Андрей Юренко писал(а):если она из тонких пеноблоков или пазогребневых блоков до 100мм, то лучше ее обшить панелями Саундлайн-ПГП. Если сделаете соседу сверху эффективную защиту под стяжку от ударного шума, то можно и обойтись без звукоизоляции этой перегородки.

А эта перегородка не будет проводить шум от соседей сбоку, приходящий на неё через стену?
mka
 
Сообщения: 2
Зарегистрирован: Чт апр 18, 2019 12:45 pm
Город: Москва

Re: Однокомнатная квартира: забыть о соседях сверху и сбоку

Сообщение Андрей Юренко » Чт апр 18, 2019 4:21 pm

mka,
"фибробетонная стяжка с "Пенофол-10" о ней больше ничего не известно.
толщина стяжки должна быть не менее 60 мм, с обязательным армированием метал.сеткой
А эта перегородка не будет проводить шум от соседей сбоку, приходящий на неё через стену
как раз против переизлучения шума применяется Саундлайн-ПГП. Только если эта перегородка до 100 мм из пено-,газоблока или пазогребневого блока.
Андрей Юренко
 
Сообщения: 575
Зарегистрирован: Чт окт 27, 2016 11:49 am
Город: Краснодар


Вернуться в Звукоизоляция

Кто сейчас на конференции

Сейчас этот форум просматривают: нет зарегистрированных пользователей и гости: 11

cron