Из чего построить межкомнатные стены + пара общих вопросов

Что такое "плавающий пол", как правильно возвести звукоизоляционную перегородку, как снизить уровень шума в боулинге, фитнесс-зале, офисе, как звукоизолировать вентилятор, насос, домашний кинотеатр и т.д.

Модераторы: Виталий Роденков, Александр Фадеев, Антон Перетокин, Николай Канев, Андрей Нечаев, Александр Боганик, root, Наталья Ширгина

Из чего построить межкомнатные стены + пара общих вопросов

Сообщение PGzz » Вт апр 09, 2019 11:11 pm

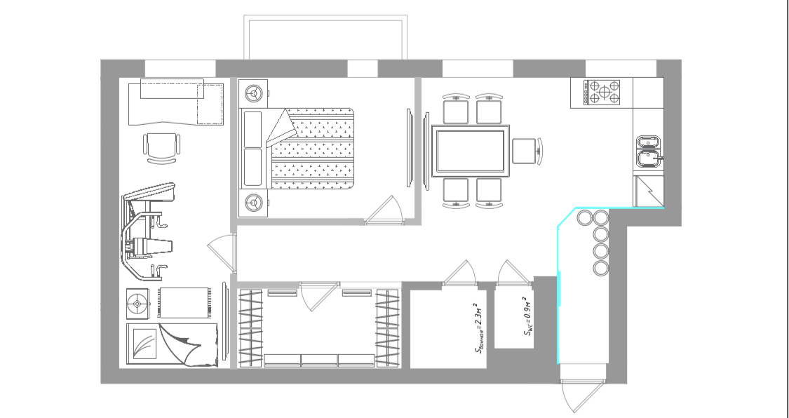
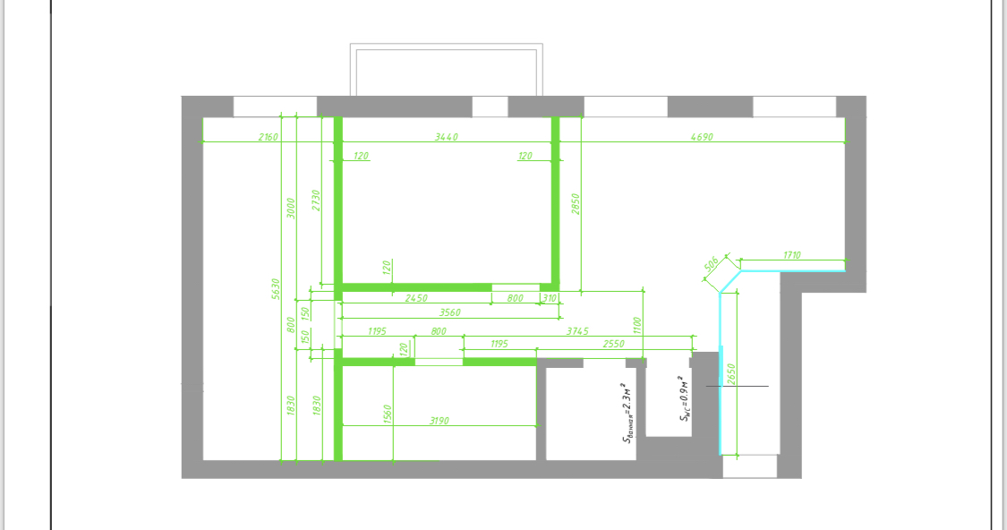
Готовлюсь к капитальному ремонту квартиры. Существующие межкомнатные стены, которые просто ужасно шумопроникаемы (из низкосортного шлакоблока + хаотичные шлепки штукатурки, на которую налеплен гипсокартон) планирую снести. Возник вопрос по возведению новых стен, конечно же, хочется не делать их по 40 см толщиной, места и так мало. На рисунке возводимые стены выделены зеленым. Особое внимание на спальне, там точно должно быть тихо.
Вариант 1. Двойной слой ГКЛ с кадой стороны, внутри напихать минваты.
Вариант 2. Пеноблок 10 см, его обшить Зипс 3 ультра. Обшивки изнутри спальни хватит или лучше с двух сторон? Или же Зипс 3 со стороны спальни, а снаружи чем-то попроще (саундлайн ПГП)?
Вариант 3. ?

Соседи. Между соседями стена в пару кирпичей, неудобств они не доставляют, профилактически пройтись за недорого тем же самым саунлайн ПГП.

Потолок. Глобально шум сверху редко беспокоит, но с учетом того, что потолки будут подвесные из ГКЛ, ничто не мешает проложить опять-таки минватой. Ок?

Полы. Соседям снизу мешать может только мой сын) Акуфлекс в качестве подложки под паркетную доску и забить?)
Вложения
2F554520-EC9E-428F-BCA2-2010BC079BFC.jpeg
2F554520-EC9E-428F-BCA2-2010BC079BFC.jpeg (154.19 КБ) Просмотров: 6849
0EB56968-56F8-472E-A657-D5E65F320ADD.jpeg
0EB56968-56F8-472E-A657-D5E65F320ADD.jpeg (141.43 КБ) Просмотров: 6849
PGzz
 
Сообщения: 2
Зарегистрирован: Вт апр 09, 2019 9:47 pm
Город: Москва

Re: Из чего построить межкомнатные стены + пара общих вопрос

Сообщение Андрей Юренко » Ср апр 10, 2019 9:51 am

Здравствуйте.

Перегородки по вот такому конструктиву - http://www.acoustic.ru/constructions/zv ... orodok/10/

Соседи. Саундлайн ПГП применяется только для тонких перегородок из газо/пеноблока или ПГП-блоков. Для этой стены рассмотрите ЗИПС Ультра.

Потолок. Если делать из ГКЛ, то с виброподвесами (Виброфлекс К-15, Коннект-ПП). Если звукоизоляция потолка стоит не на первом месте, то компромиссное решение - подвесы Ультракустик.

Пол. Да, Акуфлекс хорошее решение для снижения ударного шума умеренной интенсивности от Вас - вниз.
Андрей Юренко
 
Сообщения: 575
Зарегистрирован: Чт окт 27, 2016 11:49 am
Город: Краснодар

Re: Из чего построить межкомнатные стены + пара общих вопрос

Сообщение PGzz » Ср апр 10, 2019 10:41 pm

Спасибо за ответ.
Я правильно понимаю, что прочности предложенных перегородок хватит, чтобы повесить на них с двух сторон по большому ТВ без использования закладных?
PGzz
 
Сообщения: 2
Зарегистрирован: Вт апр 09, 2019 9:47 pm
Город: Москва

Re: Из чего построить межкомнатные стены + пара общих вопрос

Сообщение Андрей Юренко » Чт апр 11, 2019 9:18 am

Современные ТВ весят очень даже немного.
Но тем не менее, я бы задал вопрос производителю блока на нагрузку "на вырыв"
Андрей Юренко
 
Сообщения: 575
Зарегистрирован: Чт окт 27, 2016 11:49 am
Город: Краснодар


Вернуться в Звукоизоляция

Кто сейчас на конференции

Сейчас этот форум просматривают: нет зарегистрированных пользователей и гости: 13